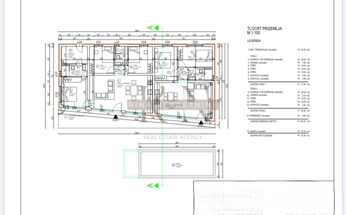
Дома в деревне RABAC - по цене 550.000,00 € - площадью 176 m2

Фото агентства Rina Nekretnine

REC ID 1233272

Подробности