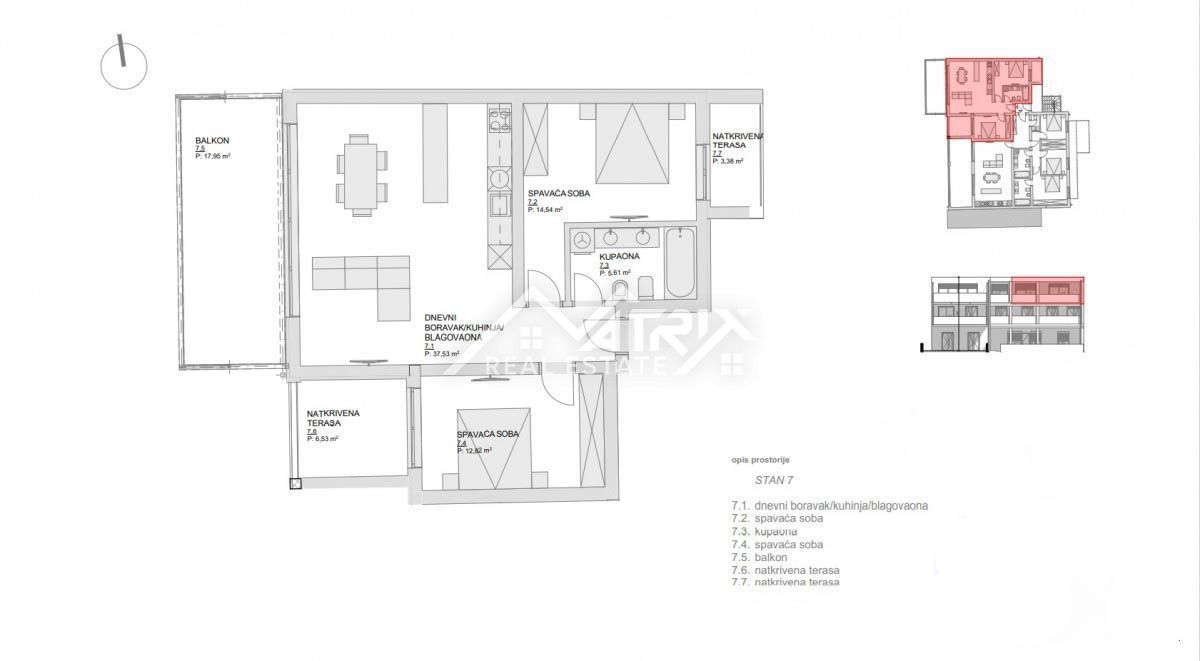
Квартиры в деревне NOVIGRAD - по цене 375.000,00 € - площадью 90 m2

Фото агентства Matrix Real Estate

REC ID 1235640

Подробности