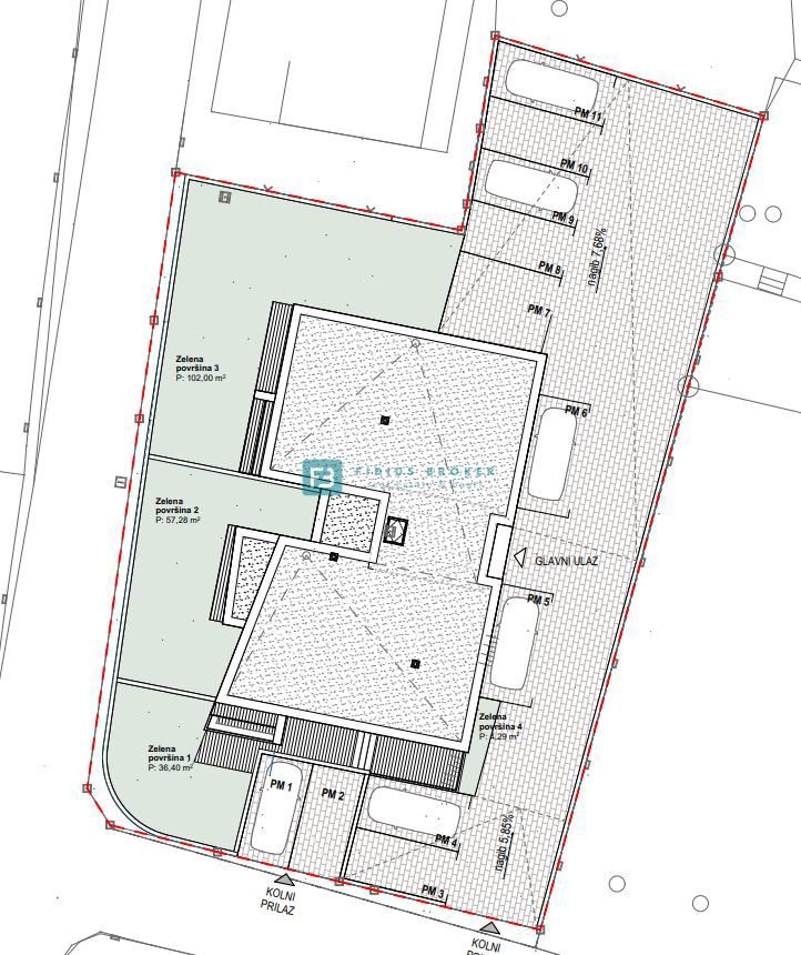
Квартиры в деревне VODICE - по цене 309.000,00 € - площадью 81 m2

Фото агентства FIDIUS BROKER 2

REC ID 1236876

Подробности