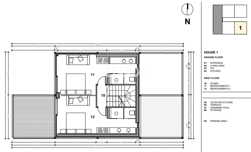
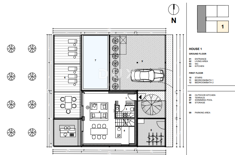
Дома в деревне LOVREČICA - по цене 759.000,00 € - площадью 202 m
2
Фото агентства DUX Nekretnine
REC ID 1237951
Подробности