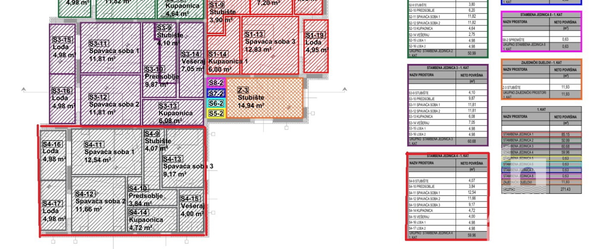
Квартиры в деревне VODICE - по цене 330.000,00 € - площадью 122 m2

Фото агентства Adriatic realty

REC ID 1238628

Подробности