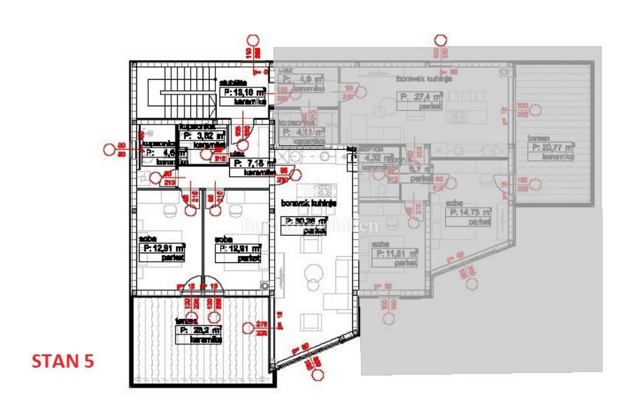
Квартиры в деревне POVILE - по цене 310.000,00 € - площадью 80 m2

Фото агентства EURO IMMOBILIEN

REC ID 1238690

Подробности