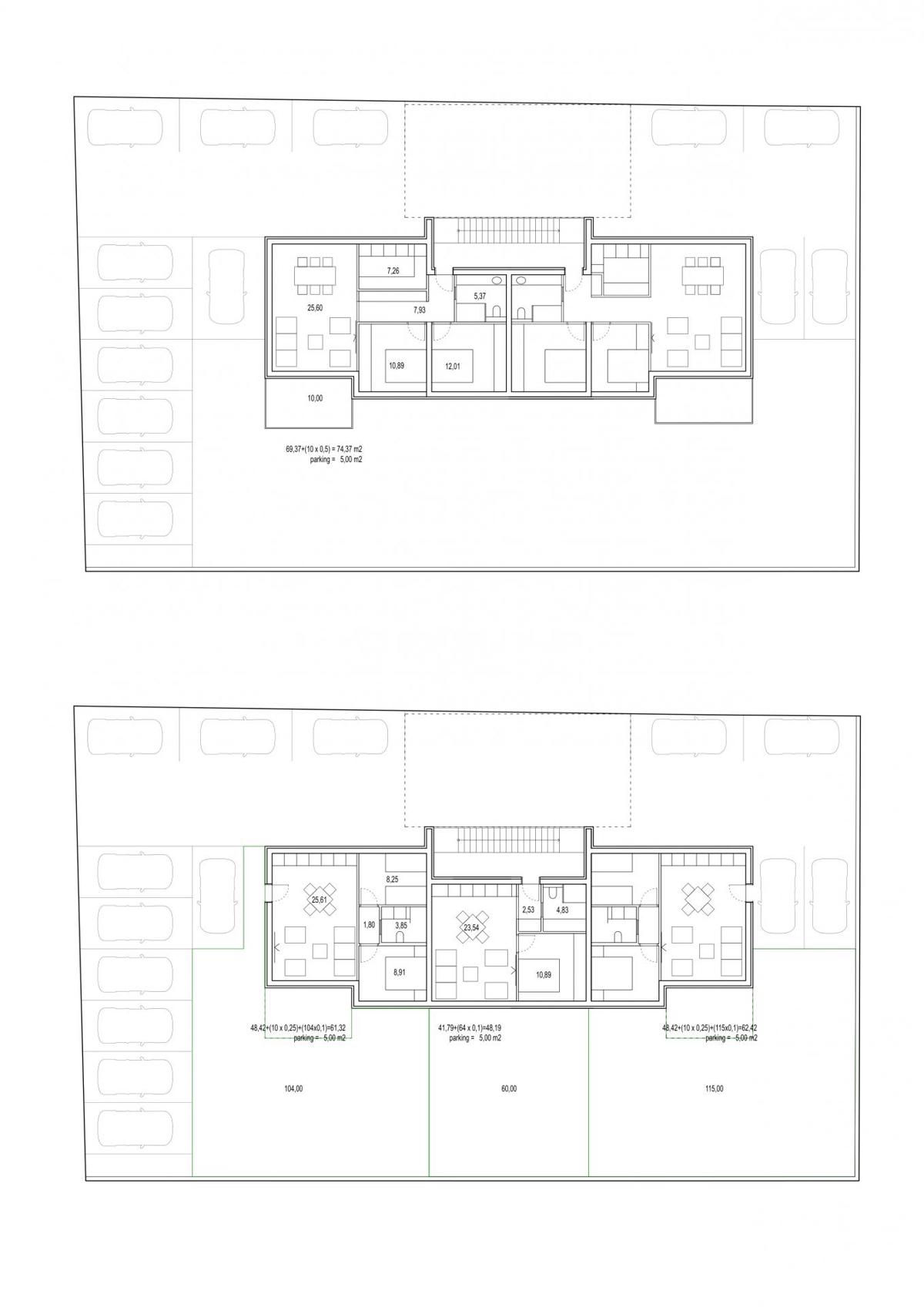
Квартиры в деревне BRODARICA - по цене 200.000,00 € - площадью 48 m2

Фото агентства Bonum nekretnine d.o.o.

REC ID 1243885

Подробности