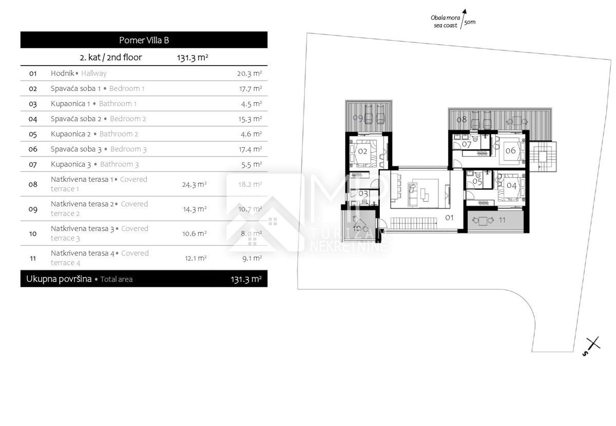
Дома в деревне POMER - по цене 1.350.000,00 € - площадью 416 m2

Фото агентства Marko Polo Nekretnine

REC ID 1244040

Подробности