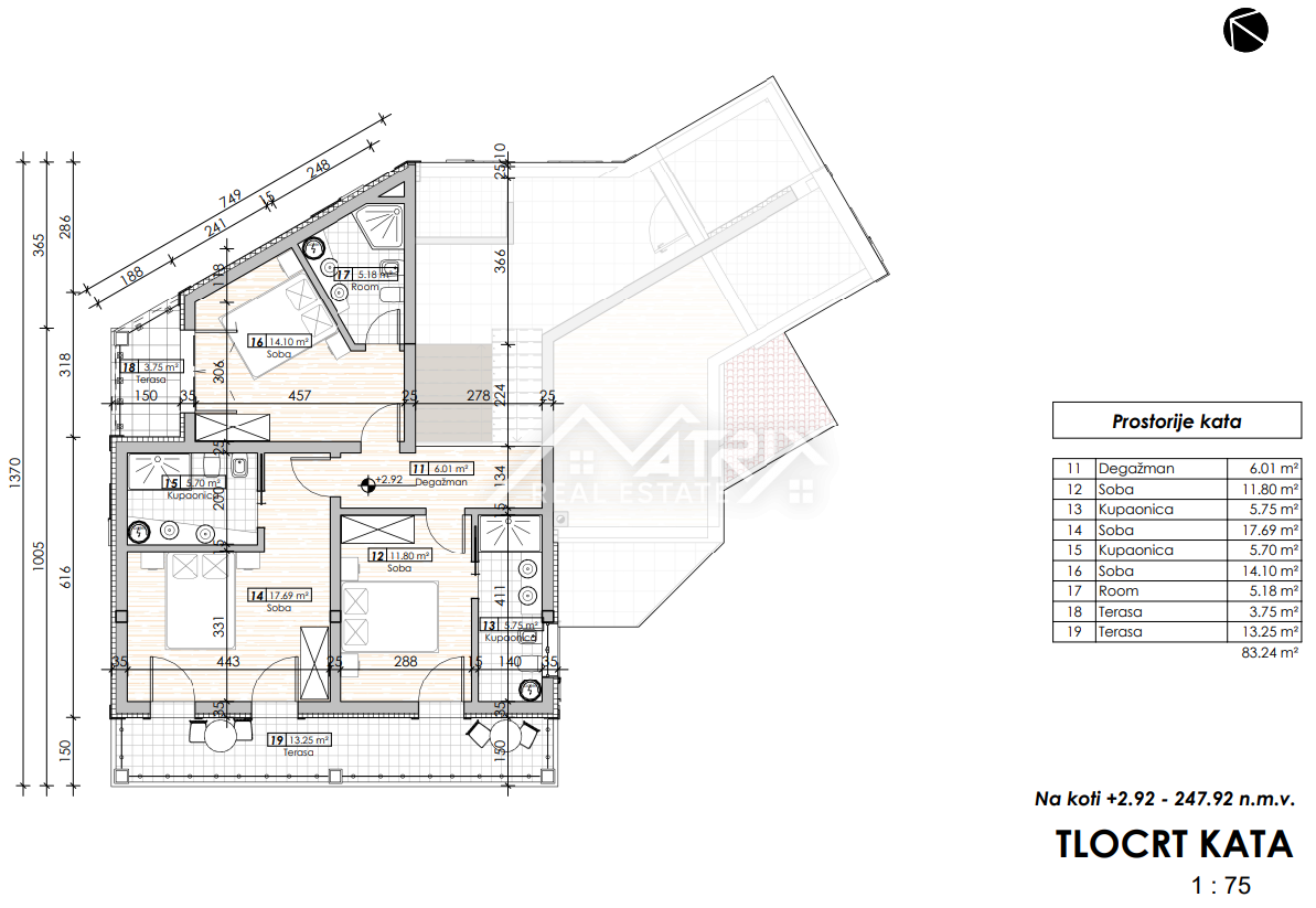
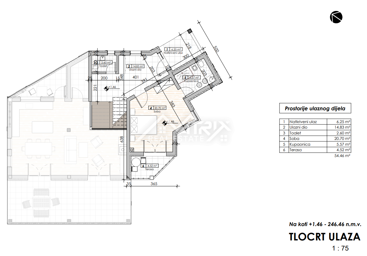
Дома в деревне POREČ - площадью 240 m2

Фото агентства Matrix Real Estate

REC ID 1246945

Подробности