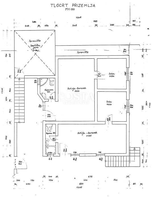
Дома в деревне DONJI KARIN - по цене 278.000,00 € - площадью 150 m2

Фото агентства Costa Nekretnine

REC ID 1248549

Подробности