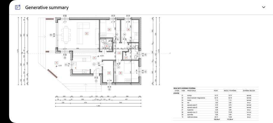
Дома в деревне KANFANAR - по цене 550.000,00 € - площадью 134 m2

Фото агентства Alma Dom - Real Estate

REC ID 1249067

Подробности