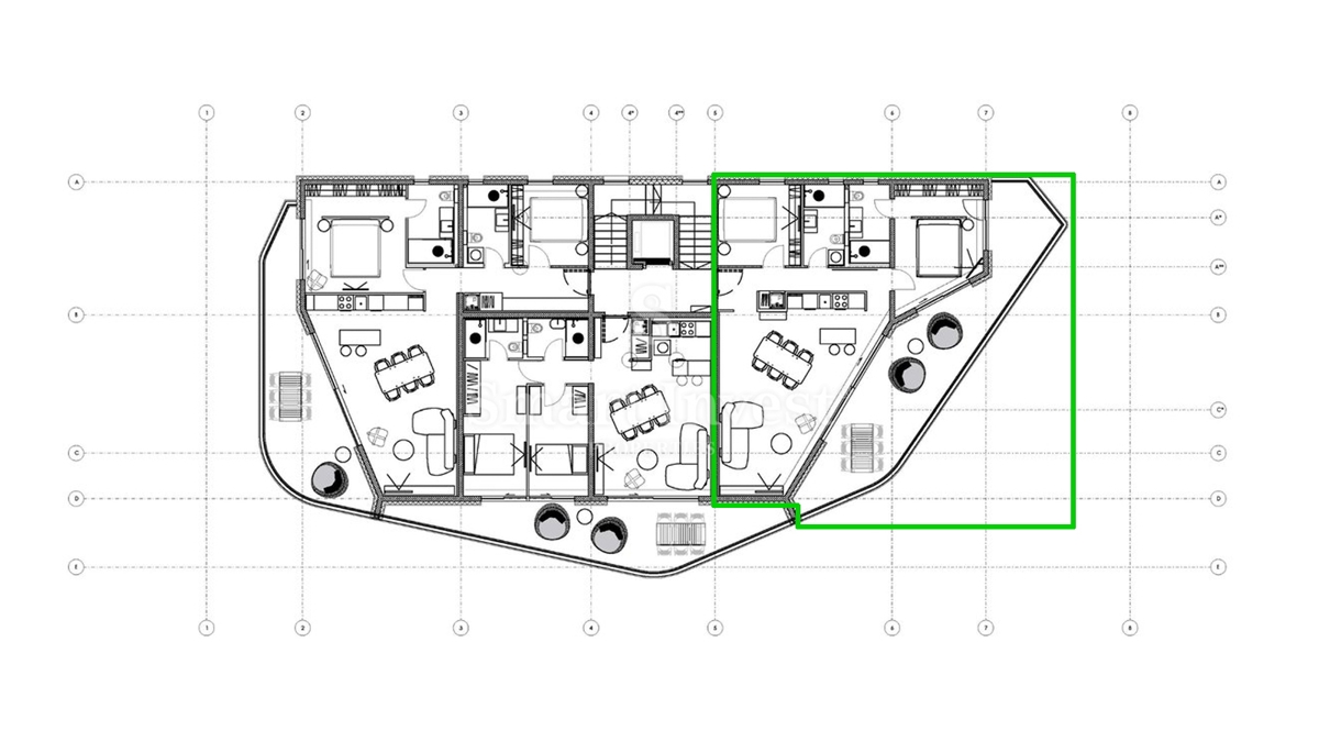
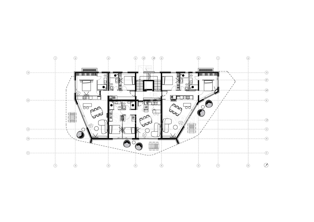
Квартиры в деревне OPATIJA - площадью 109 m2

Фото агентства Smart Invest Properties

REC ID 1249349

Подробности