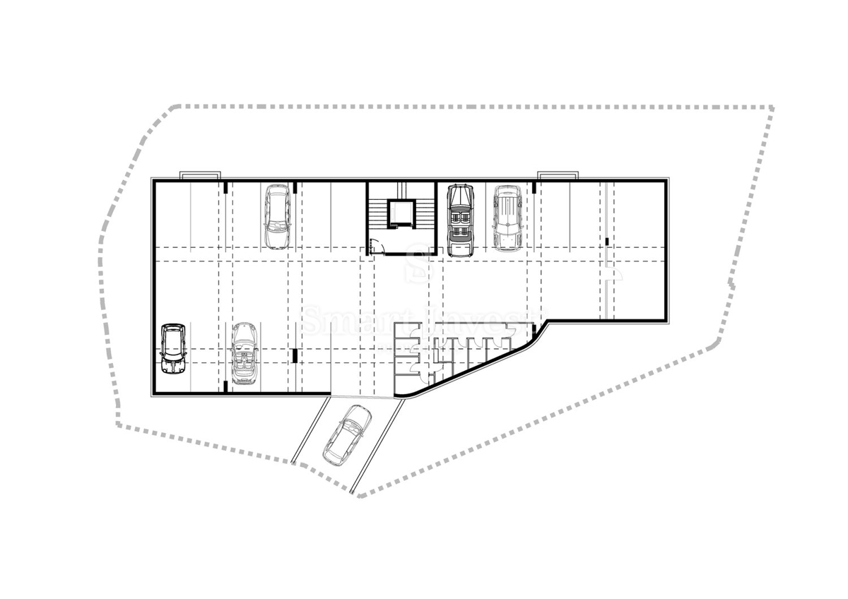
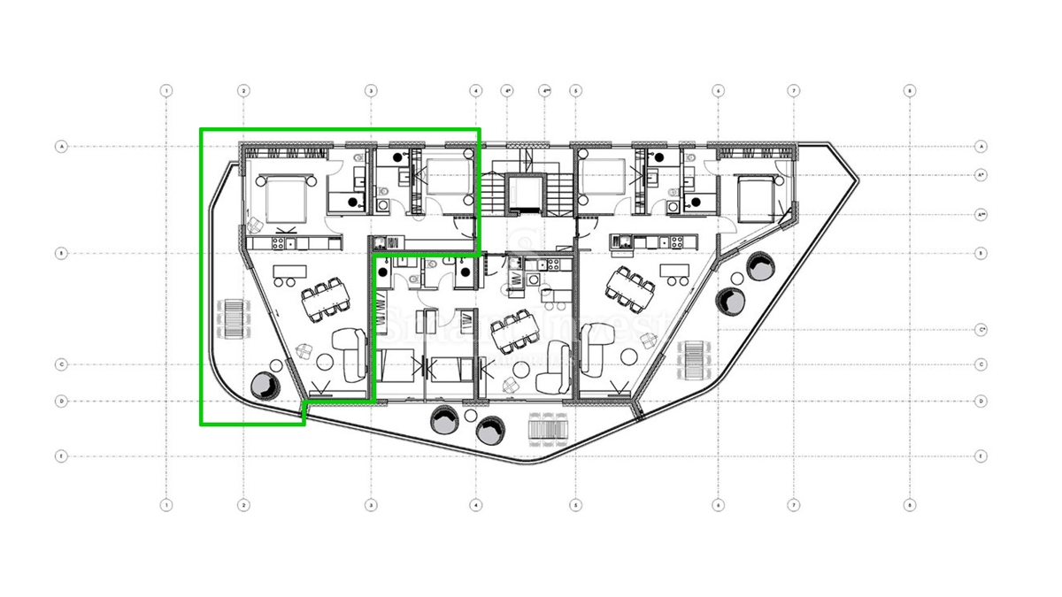
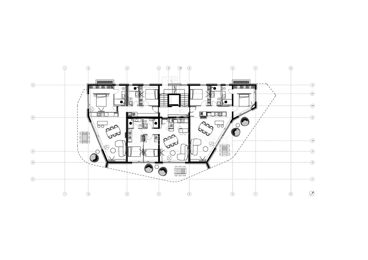
Квартиры в деревне OPATIJA - площадью 120 m2

Фото агентства Smart Invest Properties

REC ID 1249351

Подробности