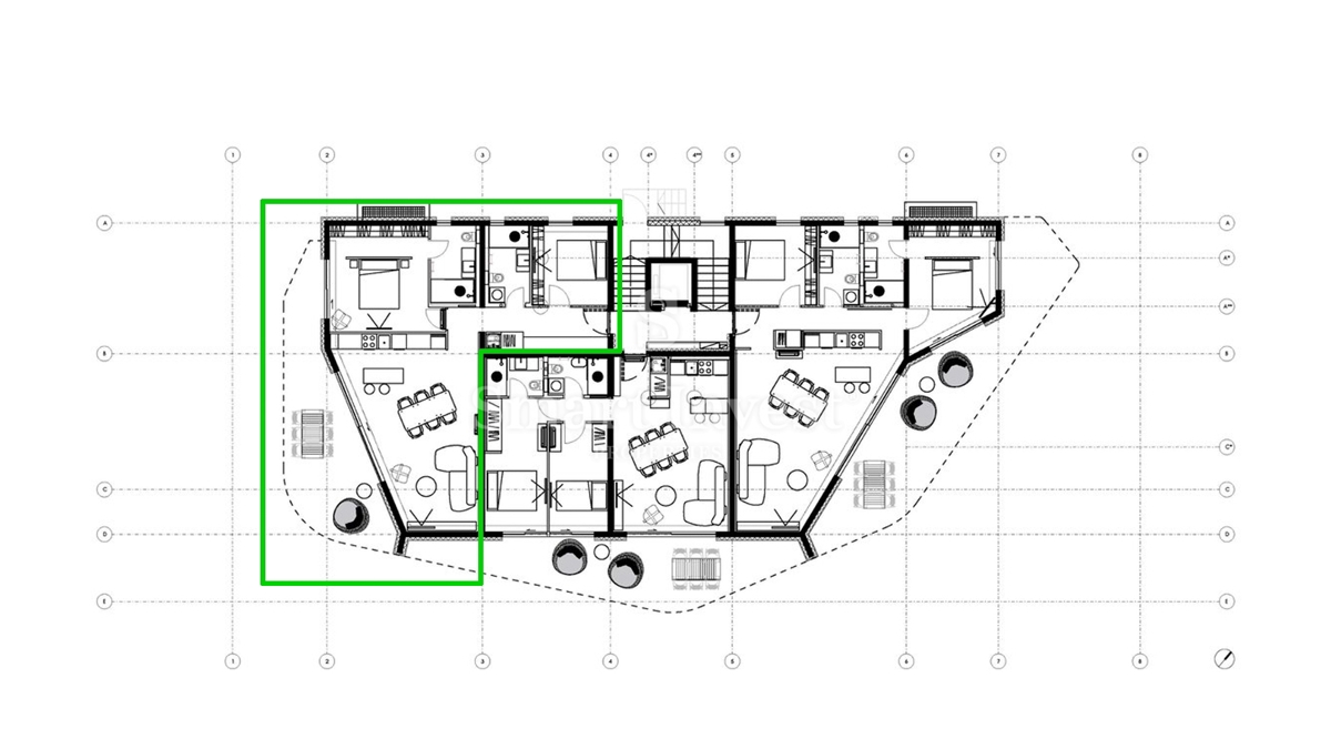
Квартиры в деревне OPATIJA - площадью 118 m2

Фото агентства Smart Invest Properties

REC ID 1249357

Подробности