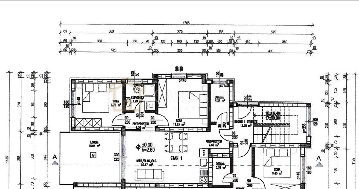
Квартиры в деревне NOVI VINODOLSKI - по цене 236.320,00 € - площадью 63 m
2
Фото агентства CASA BELLA NEKRETNINE
REC ID 1250006
Подробности