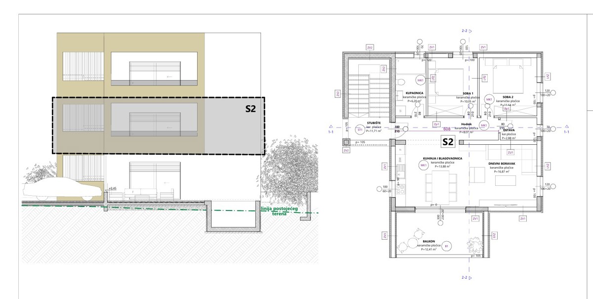
Квартиры в деревне VODICE - по цене 250.944,00 € - площадью 78 m2

Фото агентства Naš Dom

REC ID 1250657

Подробности