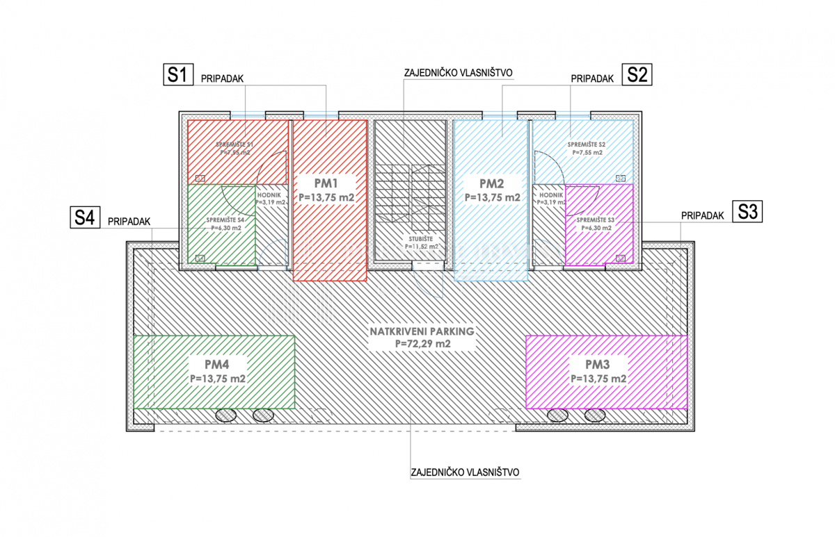
Квартиры в деревне ZADAR - по цене 692.550,00 € - площадью 153 m
2
Фото агентства Prestige Invest
REC ID 1251447
Подробности