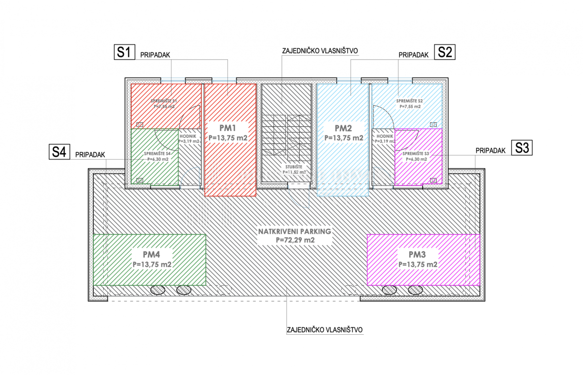
Квартиры в деревне ZADAR - по цене 472.590,00 € - площадью 105 m2

Фото агентства Prestige Invest

REC ID 1251449

Подробности