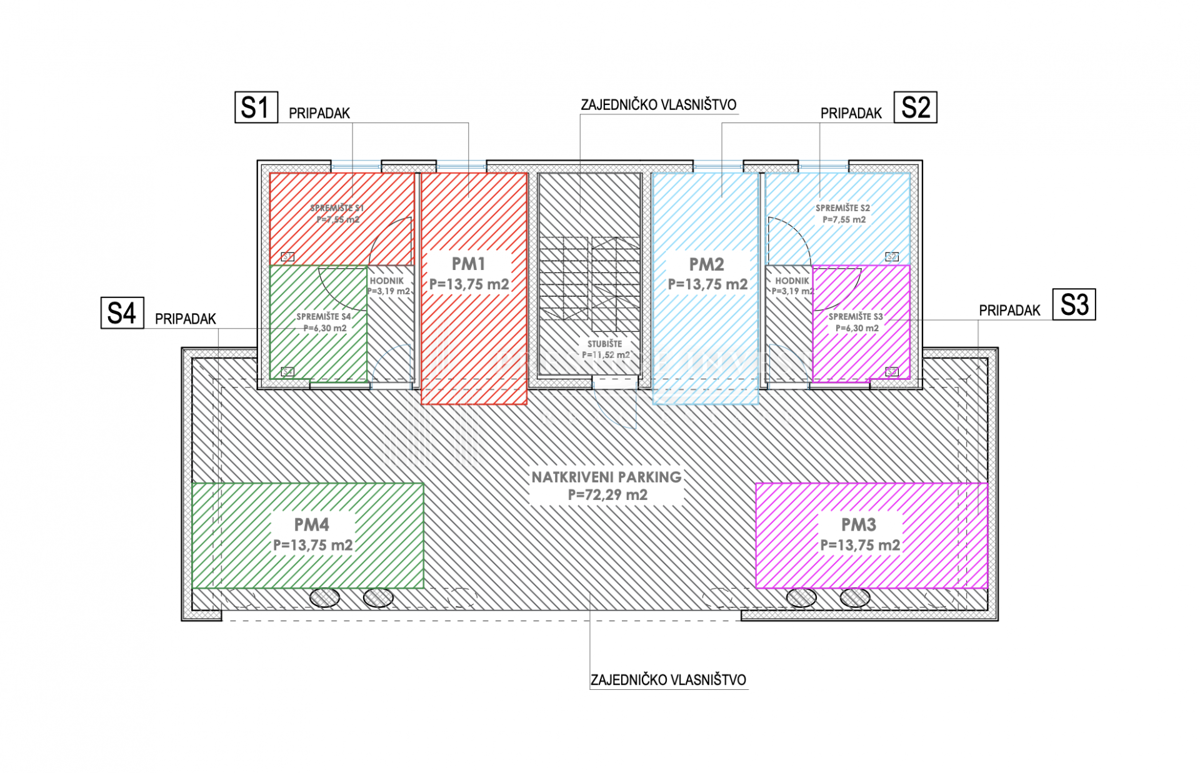
Квартиры в деревне ZADAR - по цене 519.885,00 € - площадью 115 m
2
Фото агентства Prestige Invest
REC ID 1251450
Подробности