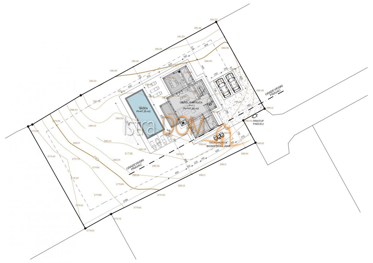
Дома в деревне LABIN - по цене 650.000,00 € - площадью 161 m
2
Фото агентства Istradom
REC ID 1257293
Подробности