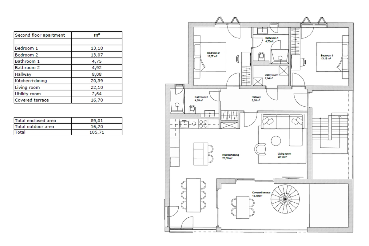
Квартиры в деревне PRIMOŠTEN - по цене 649.000,00 €

Фото агентства BROKER - Real Estate Agency

REC ID 1261226

Подробности