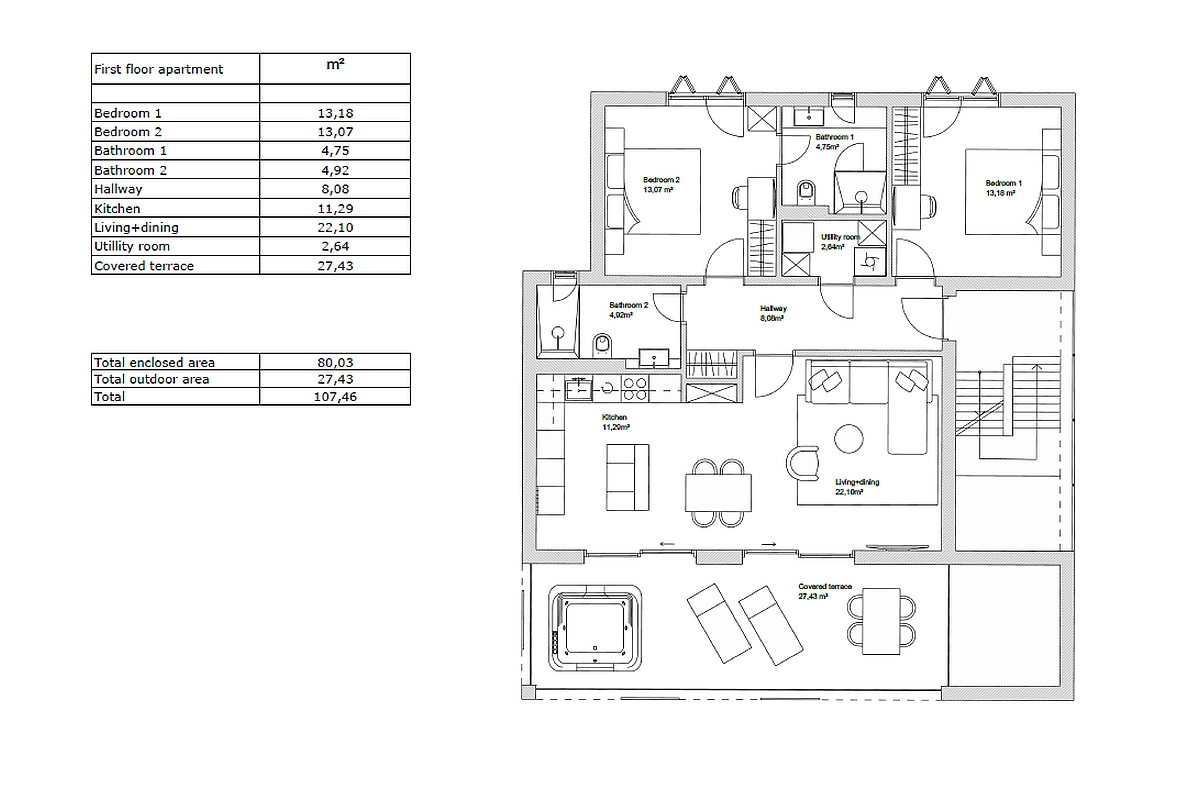
Квартиры в деревне PRIMOŠTEN - по цене 390.000,00 € - площадью 80 m2

Фото агентства BROKER - Real Estate Agency

REC ID 1261227

Подробности