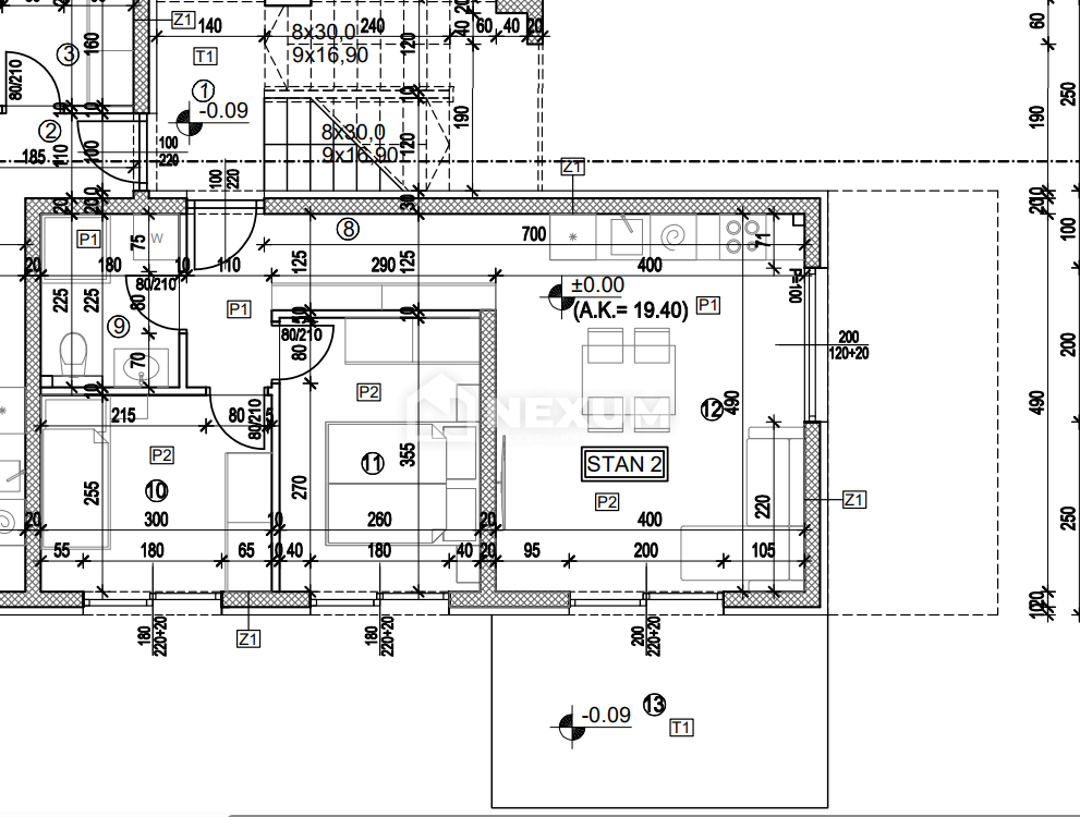
Квартиры в деревне TROGIR - по цене 193.000,00 € - площадью 57 m2

Фото агентства Nexum nekretnine

REC ID 1263133

Подробности