|
| Preis: |
400,000 €
|
| Stadt: |
BUNDEK |
| Areal: |
105 m2 |
| Zimmer: |
0 |
| Badezimmer: |
2 |
| Etage: |
4 |
| Anzahl der Besucher: |
Anzahl der Besucher |
|
Stan: Zagreb (Novi Zagreb), 105.31 m2, novogradnja
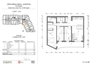
Prodaje se četverosoban stan S35 obračunske površine 105,31 m2 u Oreškovićevoj ulici 20A u projektu u izgradnji s ukupno 86 stanova na 4. katu, orijentiran prema jugoistoku, a koji se sastoji od ulaznog hodnika, dnevnog boravka s kuhinjom i blagovaonicom, tri spavaće sobe, dvije kupaonice s WC-om, loggije i spremišta u hodniku. Uz svaki stan ide obvezna kupnja najmanje jednoga garažno-parkirnog mjesta u podrumu zgrade za 1.900 EUR/m2 tlocrtne površine. Na samom ulazu u Zagreb, na izuzetno atraktivnoj lokaciji, na sjeverozapadnom uglu križanja Ulice Savezne republike Njemačke i Avenije Većeslava Holjevca, gradi se objekt s 86 stanova i 6 poslovnih prostora. Riječ je o izvrsnoj lokaciji, u neposrednoj blizini izlaza na autocestu, poslovne zone Buzin, na manje od 10 minuta vožnje od centra grada, zračne luke te autobusnog i željezničkog kolodvora, u okruženju svih sadržaja potrebnih za ugodan život. Gradnja je počela u proljeće 2025. godine, a završetak je predviđen za kraj 2026. godine kada će objekt biti spreman primiti prve stanare koji će znati prepoznati činjenicu da ovom kupnjom osiguravaju komociju koju im pruža ova lokacija. Zgrada se sastoji od podzemne garaže, prizemlja i 5 katova. U prizemlju se nalaze samo poslovni prostori i natkrivena parkirna mjesta, dok su u podrumu samo garažno-parkirna mjesta. U cijenu je uračunat PDV tako da kupac NE plaća porez na promet nekretnina u iznosu 3%. Što se tehničkog opisa tiče, zgrada ima armirano-betonsku nosivu konstrukciju koja pruža vrhunsku protupotresnu zaštitu. Ulazna vrata u stanove su protuprovalna i protupožarna. U stanove se ugrađuje višeslojni hrastov parket, keramika najviše klase, te visokokvalitetna PVC stolarija s trostrukim IZO staklom i komarnicima. Grijanje je podno preko dizalica topline zrak-voda koje griju i potrošnu toplu vodu. Stanovi su klimatizirani, a vanjske klima-jedinice su na krovu zgrade. Stubište i bešumno dizalo vode od podruma do 5. kata. Investitor je tvrtka Entrada projekt d.o.o. čiji tim do sada ima izgrađeno više od 400 stanova u proteklih 5 godina. Projekt potpisuje H3 Studio, arhitektonski ured iz Velike Gorice, autor mnogih višestambenih projekata, a prodaju cijelog projekta vodi agencija Casa Croatia d.o.o. čiji agenti imaju višegodišnje iskustvo u jednom od najvećih svjetskih sustava agencija za posredovanje u prometu nekretnina, gdje su višestruko nagrađivani i pohvaljivani za ostvarene uspjehe, i kojima se možete obratiti u slučaju da želite kupiti neku od nekretnina iz njihove ponude ili ako vam je, pak, potrebna pomoć oko prodaje vaše nekretnine, a sve to na info@entradaprojekt.hr ili na broj mobitela 091 3131 808 (Matija). Tlocrte, kvadrature i raspoloživost svih stanova možete pogledati na stranici entradaprojekt.hr .
Interni broj: 1116966 REC - 444
REC ID: 1116966
Intrnal number: 444
REC ID: 1116966
Wohnung - Verkauf - GRAD ZAGREB - ZAGREB - BUNDEK
Interne Nummer: 444
REC ID: 1116966
Numero interno: 444
REC ID: 1116966
Внутренний номер: 444
REC ID: 1116966
BUNDEK, ZAGREB GRAD ZAGREB Hrvatska (Croatia)
45.760213364364
15.98978413565
No video
|
Wenn Sie den Anbieter kontaktieren bitte anführen Sie die Immobilienkennziffer: REC-1116966
Velika Gorica
Telefon 1: 098 98 31 336
Web site: https://www.casacroatia.h...
Letzte Immobilien des Verkäufers
- Wohnung, SRIMA (1,250,000 €)
- Wohnung, SRIMA (650,000 €)
- Wohnung, SRIMA (600,000 €)
- Wohnung, VELIKA GORICA (137,900 €)
- Wohnung, VELIKA GORICA (145,950 €)
- Wohnung, VELIKA GORICA (236,950 €)
- Wohnung, VELIKA GORICA (142,120 €)
- Wohnung, VELIKA GORICA (141,440 €)
- Wohnung, VELIKA GORICA (176,960 €)
- Wohnung, VELIKA GORICA (114,450 €)
|