HRENGEITRU
Pregled po abecedi:
Back

Stan - Prodaja - GRAD ZAGREB - ZAGREB - GAIŠĆE

REC ID: 1221599

Stan - Prodaja - GRAD ZAGREB - ZAGREB - GAIŠĆE

Cijena:

296,267 €

Mjesto: GAIŠĆE
Površina: 95 m2
Broj soba: 2
Okućnica: 200 m2
Broj kupaona: 2
Broj pregleda: Broj pregleda
 1

Stan, Sesvete, novogradnja, 95.57 m2, 2S+DB, vrt i terasa, prizemlje

Predstavljamo Vam izuzetnu priliku – stan u prizemlju novogradnje od ukupno 3 stana, smješten u mirnom kvartu u Sesvetama.

Ovaj funkcionalan i svijetao stan idealan je za obiteljski život, a istovremeno spaja udobnost gradskog stanovanja s prednostima privatnosti i zelenog okruženja.

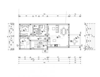
TLOCRT I POVRŠINE
Prostor (Neto površina x Koeficijent = UKUPNO)
Hodnik - 4,80 X 1,00 = 4,80 m2
Boravak + kuhinja + blagovaonica - 33,51 x 1,00 = 33,51 m2
Kupaonica - 6,32 x 1,00 = 6,32 m²
WC - 2,77 x 1,00 = 2,77 m²
Garderoba - 1,45 x 1,00 = 1,45 m²
Spavaća soba - 10,24 x 1,00 = 10,24 m²
Dječja soba - 8,53 x 1,00 = 8,53 m²
Natkrivena terasa - 10,89 x 0,5 = 5,45 m²
Privatni vrt - 200,00 x 0,10 = 20,00 m²
Privatni parking - 12,50 x 0,20 = 2,50 m²
Ukupno (s koeficijentima): 95,57 m²

Stan je osmišljen s promišljenom raspodjelom i kvalitetnim odnosom korisne površine i dodatnog vanjskog prostora, što omogućuje uživanje u vlastitom vrtu i terasi.
Posjedujete privatni vrt od 200 m², idealan za odmor, igru djece ili urban gardening.
Natkrivena terasa predstavlja produžetak dnevnog boravka u prirodi, čak i u lošijem vremenu.

PRAKTIČNOST I UDOBONOST
Svaki član obitelji ima svoju sobu: roditeljska spavaća soba i dječja soba.
Postoji i odvojeni WC + dodatna kupaonica, te garderoba za uredno odlaganje stvari.
Privatno parkirno mjesto osigurava vam miran i siguran dolazak kući.

LOKACIJA I MIKROLOKACIJA
Dobro prometno povezivanje sa središtem Zagreba — idealno za svakodnevne migracije (auto, bus, vlak).
U blizini se nalaze potrebne urbane sadržaje: škole, vrtići, trgovine, uslužne djelatnosti (banke, pošta, ljekarne itd.).

ZAŠTO ODABRATI OVAJ STAN?
Kompletan paket — stan + vrt + parking = neovisnost i udobnost.
Kvalitetna novogradnja – moderni standardi gradnje, izolacija, suvremena instalacija.
Uravnotežena kvadratura – optimalan odnos unutarnjeg i vanjskog prostora.
Privatnost u gradu – dok ste u stanu, osjećate se "kao u kući", a istovremeno imate gradske pogodnosti.

Ne propustite priliku da postanete prvi vlasnik ovog stana.

Za više detalja, razgled i cjenovne informacije slobodno me kontaktirajte — rado ću Vam pokazati novi dom.

Interni broj: 1221599 REC - ZG74026

REC ID: 1221599

 

Kontakt: Dogma nekretnine d.o.o.
Upit za nekretninu: Stan, GAIŠĆE, 95m2, 296,267 €
RECID: 1221599

Vaše ime:
Telefon:
Vaš e-mail:
Poruka:
6 + 5 =
Način odgovora:
Skipy
TOTAL SOLUTION REAL ESTATE