HRENGEITRU
Pregled po abecedi:
Back

Poslovni prostor - Najam - PRIMORSKO-GORANSKA - ČAVLE - GROBNIK

REC ID: 1245668

Poslovni prostor - Najam - PRIMORSKO-GORANSKA - ČAVLE - GROBNIK

Cijena:

3,000 €

Mjesto: GROBNIK
Površina: 400 m2
Broj soba: 1
Broj kupaona: 4
Broj pregleda: Broj pregleda
 1 2 3 4

Grobnik, Čavle, hala 400 m2, zakup

Grobnik, Čavle, hala 400 m2, zakup

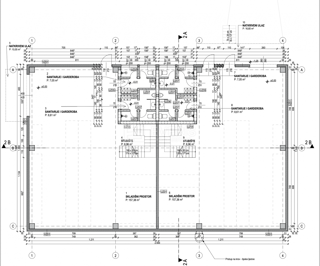
U ponudi je funkcionalan skladišni prostor ukupne površine 400 m2. Skladišni prostori su podijeljeni u dva prostora, svaki po 157 m2.

Prostor je organiziran tako da zadovoljava potrebe različitih poslovnih djelatnosti. Skladišni dio ima visinu stropa 6 m, što omogućuje optimalno korištenje prostora i skladištenje većih količina robe.

Unutar prostora nalaze se četiri sanitarna čvora, četiri garderobe za zaposlenike te galerija s dva ureda, što osigurava ugodne i praktične uvjete za svakodnevno poslovanje. Prostor je pogodan za skladišne, logističke, proizvodne ili servisne djelatnosti.

Pristup kamionima, šleperima je omogućen.
1 utovarna i istovarna rampa i mostna dizalica.

Više parkirnih mjesta.

Trenutno je hala u fázi projektiranja.

Za sve dodatne informacije slobodno nas kontaktirajte.

Poštovani klijenti, agencijska provizija naplaćuje se u skladu s Općim uvjetima poslovanja
EVERIS REAL ESTATE, koje možete preuzeti na našoj web stranici https://nekretnine.everis.hr/o-nama/opci-uvjeti-poslovanja

Interni broj: 1245668 REC - E4001

REC ID: 1245668

 

Kontakt: Everis Real Estate
Upit za nekretninu: Poslovni prostor, GROBNIK, 400m2, 3,000 €
RECID: 1245668

Vaše ime:
Telefon:
Vaš e-mail:
Poruka:
6 + 5 =
Način odgovora:
Everis Real Estate