Top Banner
Ricerca alfabetica

144.900 € - DUGA UVALA Terreno REC-ID 1092655

Galleria
  • Città: DUGA UVALA
  • Prezzo (€): 144.900 €
  • Superficie: 862 m2
  • Vista: mare
  • Terra: 862 m2
  • Trasporti: -
  • Vicinanza mare: -
  • Distanza dal centro: 0 m
  • Distanza dal mare: 0 m

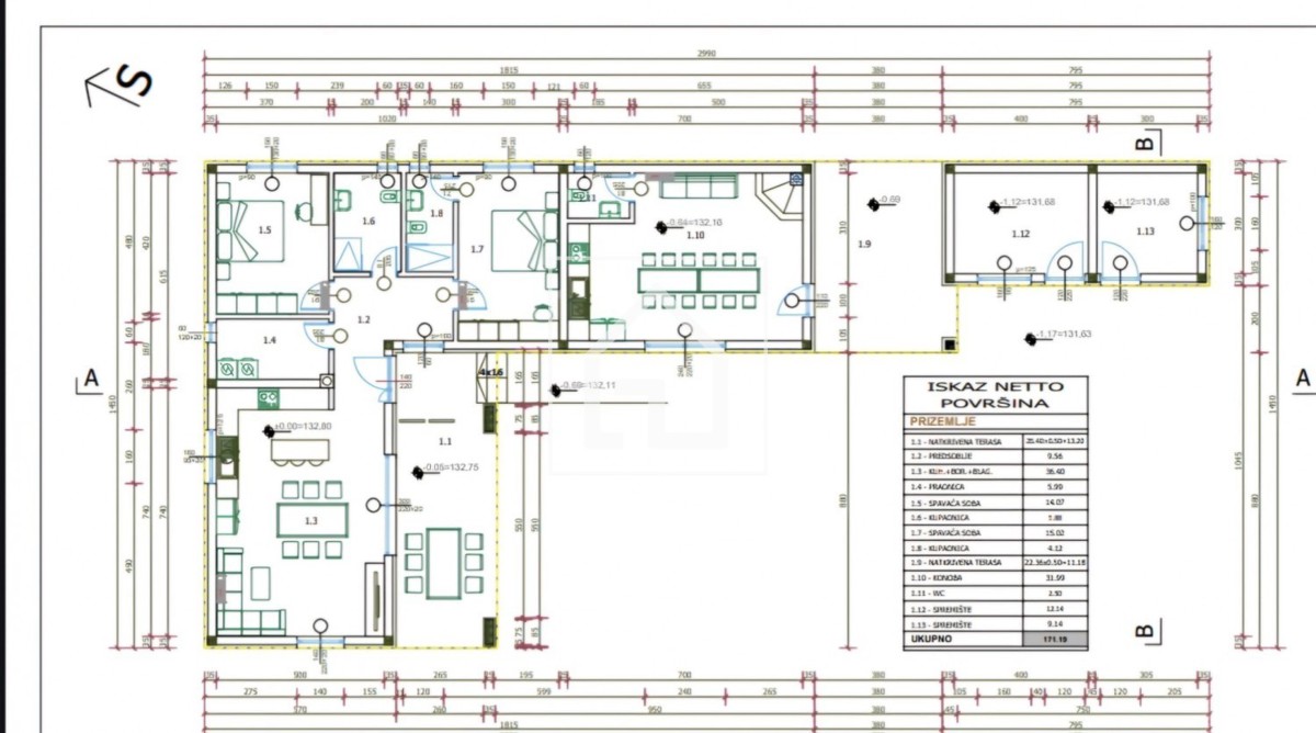
A soli 2000 metri dalla bellissima spiaggia, in un tranquillo contesto di poche case; c'è questo terreno con una superficie totale di 862m2. È stato rilasciato un permesso di costruzione valido per il piano terra di 171,19 m2, che è stata concepita come una casa familiare tradizionale istriana con taverna, a forma di L. Si compone di: soggiorno con cucina e sala da pranzo, 2 camere da letto con bagno, lavanderia, 2 terrazzi coperti, taverna con wc, 2 ripostigli e parcheggio per 3 veicoli Ideale per famiglia ma anche per locazione turistica. Il prezzo è di 155.000 euro

Contatta venditore

Contatto: B.B.M. REAL ESTATE
Immobile: Terreno - Vendita - DUGA UVALA
RECID: 1092655

Aggiungi proprietà
Right Details Banners
Roto Details Banners