Top Banner
Ricerca alfabetica

65.000 € - VODNJAN Terreno REC-ID 1109049

Galleria
  • Città: VODNJAN
  • Prezzo (€): 65.000 €
  • Superficie: 323 m2
  • Trasporti: -
  • Vicinanza mare: -
  • Distanza dal centro: 0 m
  • Distanza dal mare: 0 m

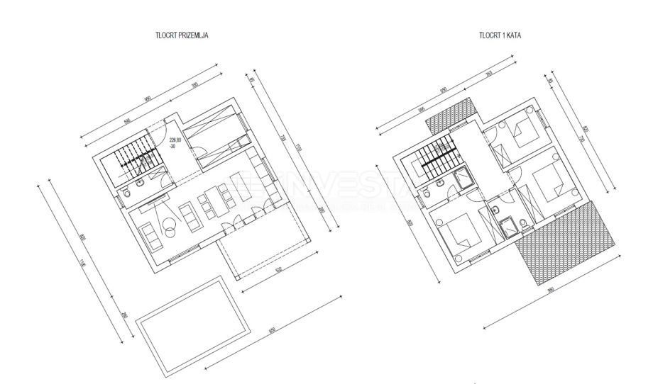
Dintorni di Dignano, terreno edificabile 323 m² con permesso di costruzione per una casa di 165 m² Vendiamo terreno edificabile con permesso per costruire una casa con piscina nei dintorni di Dignano. La superficie totale del terreno è di 323 m² più una quota della strada di accesso. Il terreno è destinato alla costruzione di una casa unifamiliare di superficie lorda di 165 m² con piscina. La casa è prevista su due piani (piano terra + primo piano). È stato realizzato il progetto architettonico principale, sono state definite le condizioni speciali e ottenuto il permesso di costruzione. Il prezzo include l’IVA poiché il terreno è di proprietà di una persona giuridica. È possibile modificare successivamente progetto e permesso in base alle esigenze dei nuovi proprietari. La proprietà è regolare, senza vincoli. È possibile accordarsi per l’esecuzione dei lavori fino allo stato grezzo con contratto preliminare e piano di finanziamento. La strada di accesso è in ordine; il terreno si trova in un villaggio nei dintorni di Dignano, verso l’interno dell’Istria, circondato da altre case. L’accesso alle utenze di elettricità e acqua è facilitato. Questo terreno è uno dei cinque terreni edificabili dove si costruiranno case, con possibilità di acquistare una o più parcelle. I progetti principali e i permessi emessi accelerano i tempi di costruzione. La vicinanza alle infrastrutture e le condizioni di collegamento approvate facilitano l’inizio dei lavori. I costi per il contributo comunale e idrico sono circa 5.000 EUR, allaccio elettrico 2.000 EUR, allaccio acqua 1.000 EUR, per un totale di circa 8.000 EUR. Approfitta di questa opportunità per costruire la tua casa con piscina in Istria, a 20 minuti dal mare e dalle splendide spiagge. Il terreno si trova a 10 minuti dall’uscita dell’autostrada istriana, che collega tutte le città dell’Istria in meno di un’ora. Numerose piste ciclabili sono il modo migliore per esplorare l’Istria, una delle quali passa proprio accanto al terreno. Clima mediterraneo mite, mare e aria puliti, sicurezza, natura incontaminata, ospitalità, cibo di qualità, oli d’oliva e vini premiati e rinomati nel mondo, asparagi selvatici e funghi: tutti ottimi motivi per pensare a una casa in Istria. Per ulteriori informazioni o per una visita, contattaci con fiducia!

Contatta venditore

Contatto: INVESTA Real Estate
Immobile: Terreno - Vendita - VODNJAN
RECID: 1109049

Agent

Agente responsabile di questa proprietà in VODNJAN di 65.000 €

Đankarlo Čekić

Telefono: +385 52 33 00 33
Cellulare: +385 99 237 6130

Fare una chiamata Contatta venditore

CONTATTO INSERZIONISTA

Contatando l'inserzionista per favore citare il codice dell'immobile: REC-1109049

INVESTA Real Estate

INVESTA Real Estate

Telefono: +385915060500
Cellulare: +385915060511

Maggiori informazioni sull'agenzia
Aggiungi proprietà
Right Details Banners
Roto Details Banners