
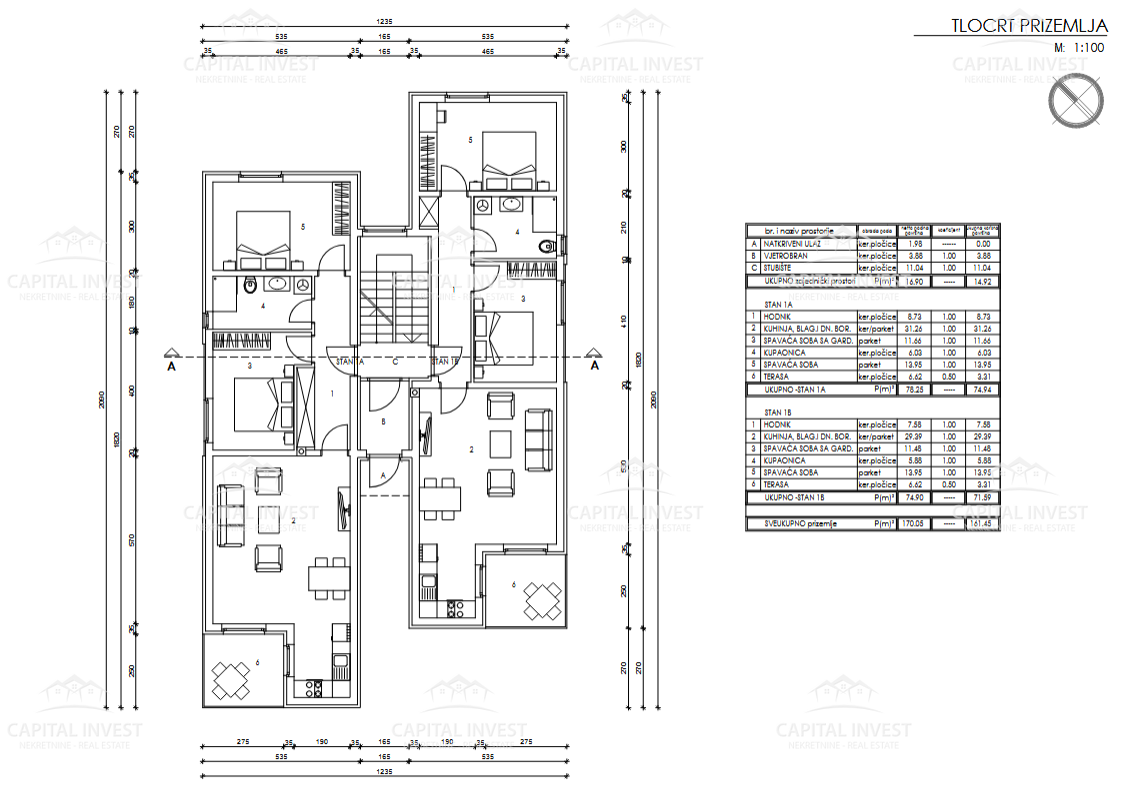
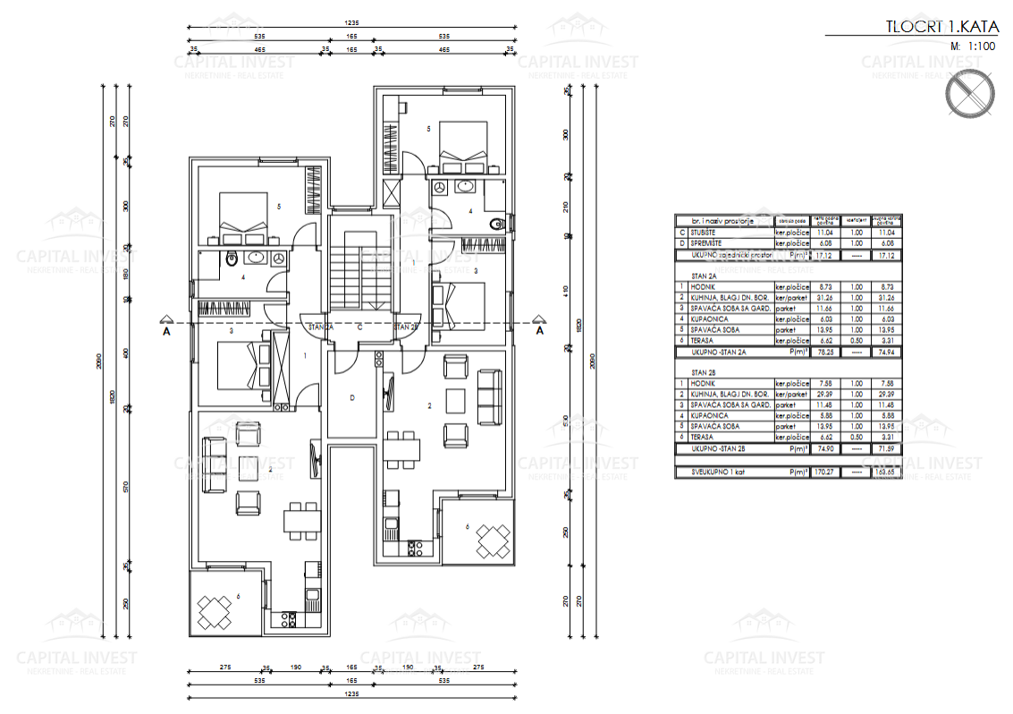
Terreno edificabile in vendita con progetto approvato e permesso di costruzione definitivo per la realizzazione di un edificio residenziale moderno composto da quattro unità abitative nel quartiere di Vinkuran - due al piano terra e due al primo piano. Secondo il progetto, due appartamenti hanno una superficie di 74,59 m2, mentre gli altri due di 71,54 m2. Ogni appartamento comprende due camere da letto, cucina con sala da pranzo, soggiorno e bagno, oltre a una cantina e un posto auto coperto. Il progetto è stato concepito per combinare funzionalità, comfort e design contemporaneo, con un utilizzo ottimale dello spazio e un’orientazione ideale delle unità abitative. Questa proprietà rappresenta un’ottima opportunità di investimento per la costruzione di un edificio residenziale destinato a abitazioni familiari o affitti turistici. Vi invitiamo a considerare questa opportunità e a esplorare le possibilità che questo terreno può offrire per i vostri piani di investimento. Per maggiori informazioni e per organizzare una visita, non esitate a contattarci con fiducia.
Agente responsabile di questa proprietà in VINKURAN di 250.000 €
Pavle Kavedžija
Telefono: +38598202300
Contatando l'inserzionista per favore citare il codice dell'immobile: REC-1223327
Capital invest d.o.o.
Telefono: 098 202 300
Maggiori informazioni sull'agenziaUltimi immobili del venditore
Immobili correlati