
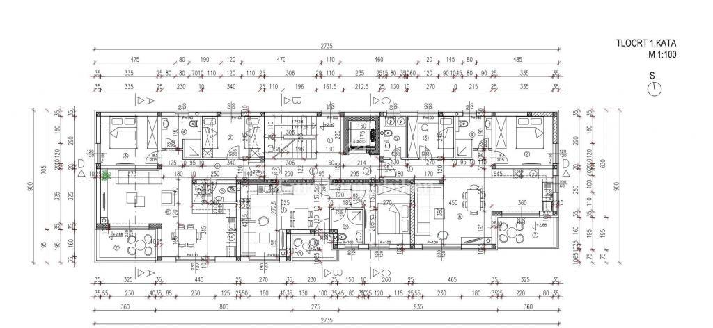
L’investitore avvia la costruzione di un edificio residenziale con 11 appartamenti distribuiti su tre piani – piano terra, primo e secondo piano – e con ascensore. L’inizio dei lavori è previsto per il 15 novembre 2025, mentre il completamento entro il 1° maggio 2027. Il piano di pagamento prevede: 10% di caparra, 50% allo stato grezzo, 15% dopo intonaco e massetto, 15% al termine della facciata e della posa delle piastrelle, e il restante 10% al rilascio del certificato di abitabilità. Ogni appartamento avrà due posti auto. Il riscaldamento sarà a pavimento elettrico ed è prevista la predisposizione per l’aria condizionata. Gli infissi saranno in PVC Gealan 9000. Gli appartamenti al piano terra avranno giardini privati di circa 76 m² e 110 m². Il prezzo degli appartamenti più grandi è di €3.500/m², mentre i più piccoli costano €4.000/m². Provizija agencije za kupca iznosi 3% + PDV i plaća se u slučaju kupovine nekretnine kod zaključenja kupoprodajnog Ugovora.
Agente responsabile di questa proprietà in TAR di 148.000 €
Euro Immobilien d.o.o.
Cellulare: 00385 (0)99 444 0660
Contatando l'inserzionista per favore citare il codice dell'immobile: REC-1224641
EURO IMMOBILIEN
Telefono: 00385 99 444 0660
Cellulare: 00385 99 444 0660
Ultimi immobili del venditore
Immobili correlati