
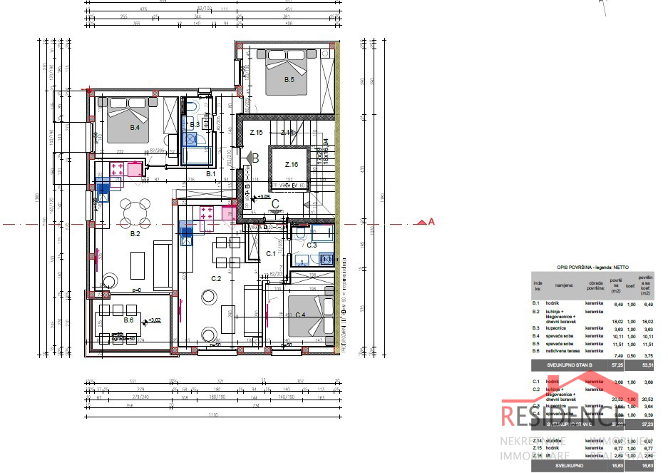
Stiamo vendendo un nuovo appartamento a Veli Vrh in un piccolo edificio residenziale con solo quattro appartamenti. L'appartamento è in costruzione e la data prevista per il completamento e l'ingresso è la fine del 2026. Superficie totale 44,76 m2. Si trova al primo piano ed è composto da un corridoio, un bagno, una camera da letto, un soggiorno con cucina e sala da pranzo e una loggia. L'appartamento sarà dotato di riscaldamento a pavimento con pompa di calore e condizionatori inverter in ogni stanza. Gli infissi esterni includono una parete scorrevole in alluminio e finestre in PVC con triplo vetro, tapparelle elettriche e zanzariere. L'appartamento comprende un ripostiglio e un posto auto nel garage sotterraneo. L'edificio è dotato di ascensore. Edificio A, appartamento C
Contatando l'inserzionista per favore citare il codice dell'immobile: REC-1224906
RESIDENCE, AGENCIJA ZA PROMET NEKRETNINA
Telefono: 098/849-823
Cellulare: 098/855-434
Ultimi immobili del venditore
Immobili correlati