
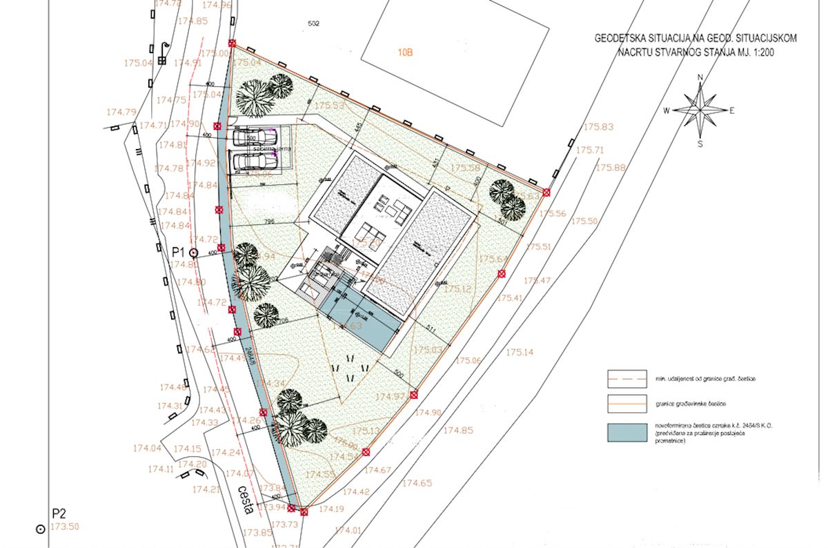
In vendita un attraente terreno edificabile di 841 m², situato in un tranquillo villaggio a soli 8 km da Parenzo e dal mare, e circa 2 km dall’uscita dell’autostrada. Il terreno dispone di un permesso di costruzione valido e del contributo comunale pagato per la costruzione di una moderna casa familiare con piscina. Il progetto prevede una casa prefabbricata di 162 m² di superficie netta abitabile e una piscina di 30 m², distribuita su due piani (piano terra e primo piano). La casa è composta da 3 camere da letto, 3 bagni e da un piano terra completamente adattato per persone con disabilità, compreso l’accesso alla piscina. Il progetto offre grande efficienza energetica, design moderno e costruzione sostenibile. Il costo della prima fase di costruzione (circa 60.000 €) è già incluso nel prezzo. Posizione tranquilla vicino al mare e a tutti i servizi – ideale come casa per la famiglia o investimento in Istria. Allaccio idrico accanto al terreno (tassa non inclusa nel prezzo). Permesso di costruzione valido – lavori possono iniziare subito!
Agente responsabile di questa proprietà in POREČ di 130.000 €
Petra Stojaković
Telefono: 098274774
Lingue straniere: engleski, njemački, talijanski, francuski, španjolski
Contatando l'inserzionista per favore citare il codice dell'immobile: REC-1227383
Casa Sol Maris
Telefono: 098274774
Cellulare: 098274774
Ultimi immobili del venditore
Immobili correlati