Top Banner
Ricerca alfabetica

110.000 € - BARBAN Terreno REC-ID 1237382

Galleria
  • Città: BARBAN
  • Prezzo (€): 110.000 €
  • Terra: 784 m2
  • Trasporti: -
  • Vicinanza mare: +
  • Distanza dal centro: 0 m
  • Distanza dal mare: 0 m

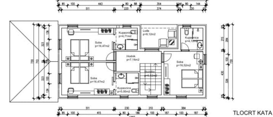
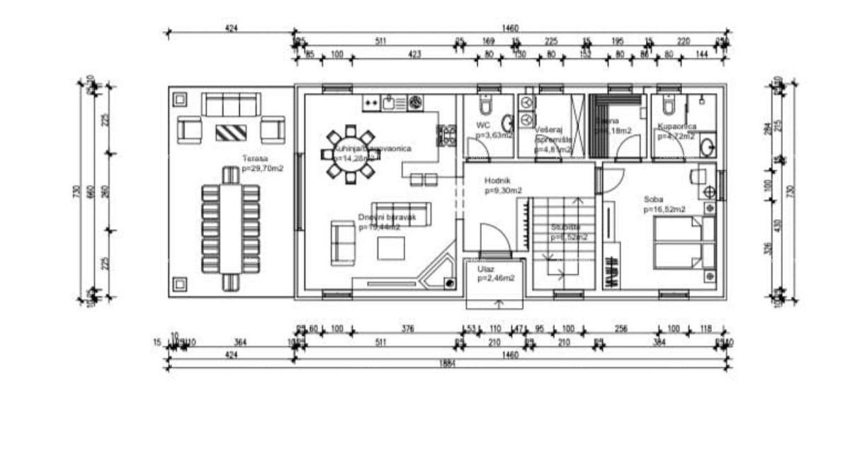
Stiamo vendendo un terreno edificabile di 784 m2 con permesso di costruire per la costruzione di una casa bifamiliare. Le utenze sono pagate. Il terreno è immerso nella natura, circondato dal verde. Il terreno è dotato di una comoda strada di accesso asfaltata. Secondo il progetto, su questo terreno sorgerebbe una casa a due piani, composta da ingresso coperto, corridoio, scala, cucina con sala da pranzo, soggiorno, camera da letto con bagno, WC separato, sauna, lavanderia e un'ampia terrazza coperta al piano terra. Il piano superiore della casa sarebbe composto da un corridoio, tre camere da letto, ciascuna con il proprio bagno, e una loggia. Sul terreno sarebbe presente una piscina con 2 posti auto. La proprietà è ordinata 1/1. Prezzo 110.000 + IVA Azra Valjevac +385 91 611 5706 +385 98 420 885 azra@almadominvest.com

Contatta venditore

Contatto: Alma Dom - Real Estate
Immobile: Terreno - Vendita - BARBAN
RECID: 1237382

Agent

Agente responsabile di questa proprietà in BARBAN di 110.000 €

Alma Valjevac

Telefono: +38552213332
Cellulare: +38598420885

Fare una chiamata Contatta venditore

CONTATTO INSERZIONISTA

Contatando l'inserzionista per favore citare il codice dell'immobile: REC-1237382

Alma Dom - Real Estate

Alma Dom - Real Estate

Telefono: +385916115706
Cellulare: +385 91 6115706 +38598420885 +385991962863

Maggiori informazioni sull'agenzia
Aggiungi proprietà
Right Details Banners
Roto Details Banners