Top Banner
Ricerca alfabetica

250.000 € - VRBNIK Terreno REC-ID 1242284

Galleria
  • Città: VRBNIK
  • Prezzo (€): 250.000 €
  • Superficie: 512 m2
  • Vista: mare
  • Trasporti: -
  • Vicinanza mare: -
  • Distanza dal centro: 0 m
  • Distanza dal mare: 350 m

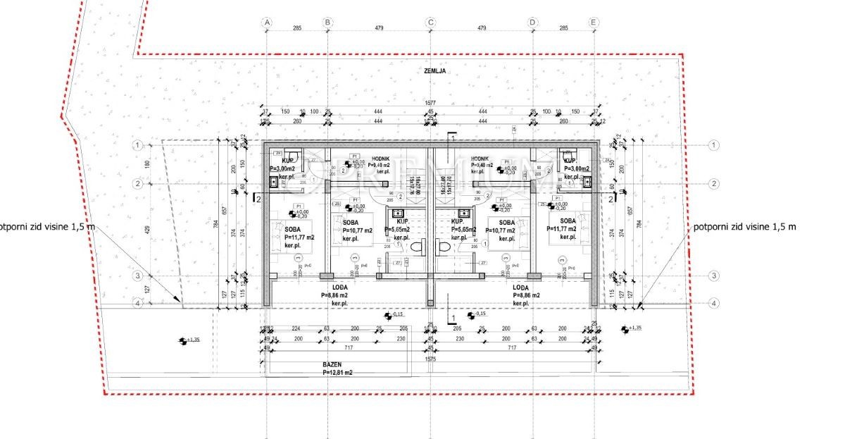
In vendita un terreno edificabile a Vrbnik, sull’isola di Krk, situato a circa 350 metri dal mare. Il terreno ha una forma regolare che consente una pianificazione semplice del futuro edificio. La posizione è tranquilla e gradevole, vicino alla spiaggia e ai servizi essenziali, ideale per la costruzione di una casa familiare o di una residenza per vacanze. È stato avviato il processo di ottenimento del permesso di costruire sulla base del progetto principale, che prevede la realizzazione di una casa indipendente con due unità abitative, ciascuna con la propria piscina. Le infrastrutture comunali si trovano nelle immediate vicinanze, mentre la vista mare conferisce ulteriore valore e un’atmosfera speciale. Si tratta di un terreno con un ottimo potenziale, adatto all’uso personale o come investimento.

Contatta venditore

Contatto: PREMIUM nekretnine
Immobile: Terreno - Vendita - VRBNIK
RECID: 1242284

Aggiungi proprietà
Right Details Banners
Roto Details Banners