Top Banner
Ricerca alfabetica

290.000 € - VIS Appartamento REC-ID 1244931

Galleria
  • Città: VIS
  • Prezzo (€): 290.000 €
  • Superficie: 65 m2
  • Vani: 2
  • Vista: mare
  • Terra: 10 m2
  • Bagni: 1
  • Trasporti: -
  • Vicinanza mare: -
  • Distanza dal centro: 0 m
  • Distanza dal mare: 0 m

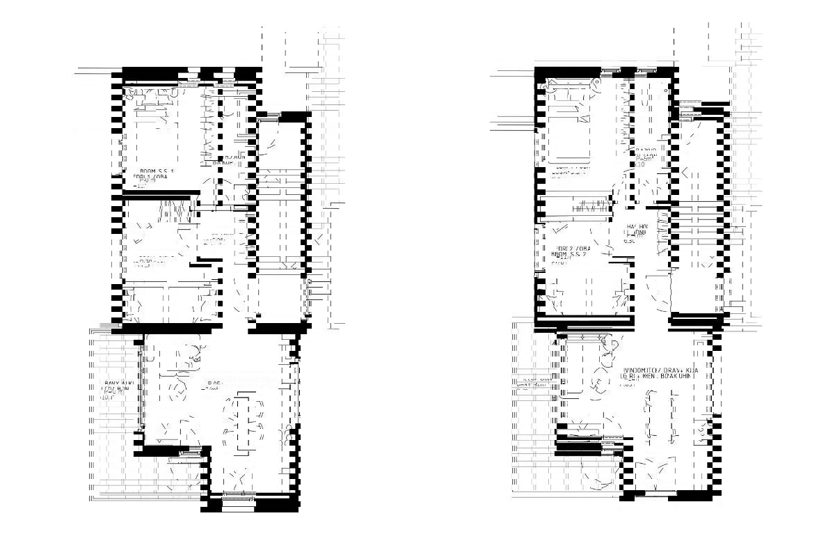
Su una delle isole più autentiche della Dalmazia, l’isola di Vis, nella pittoresca Komiža, è in corso la costruzione di un nuovo edificio residenziale, situato in una posizione tranquilla, vicino a tutti i servizi principali.   L’appartamento si trova al primo piano e ha una superficie netta totale di 65 m². È composto da un ingresso, un ampio soggiorno collegato alla cucina e alla sala da pranzo, con accesso al balcone, due camere da letto e un bagno. Il balcone è esposto a sud e offre una splendida vista sul mare, garantendo molta luce naturale durante tutto il giorno.   Sarà dotato di infissi in PVC con tapparelle in alluminio, con persiane in alluminio aggiuntive sui balconi, ceramiche di prima qualità, parquet in rovere, porte d’ingresso blindate e aria condizionata. L’appartamento dispone di un posto auto.   Si trova in una zona tranquilla e allo stesso tempo a pochi passi dal lungomare, da negozi, ristoranti e bar. Il completamento dei lavori è previsto per l’inizio dell’estate 2026.   Grazie alla qualità costruttiva, ai materiali accuratamente selezionati e alla posizione privilegiata, questa proprietà è un’ottima scelta per vivere tutto l’anno, ma anche un investimento sicuro con un grande potenziale per l’affitto turistico.   Comisa è nota per il suo mare cristallino, la natura incontaminata e l’autentica atmosfera mediterranea. Le sue stradine strette, i negozi di souvenir e gli studi offrono numerose opportunità di esplorazione, mentre gli amanti delle vacanze attive possono praticare sport, escursioni, immersioni ed escursioni alle isole vicine. Nonostante la sua popolarità tra i velisti, Comisa conserva il suo carattere locale e il suo stile di vita rilassato.

Contatta venditore

Contatto: BROKER - Real Estate Agency
Immobile: Appartamento - Vendita - VIS
RECID: 1244931

Aggiungi proprietà
Right Details Banners
Roto Details Banners