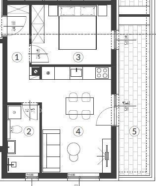
Vendita di appartamenti nel nuovo progetto, Pola! Progetto residenziale a Pola, edificio di tre piani con 12 unità abitative. L'appartamento B11, di 42,27 m², si trova al secondo piano dell'edificio ed è composto da: corridoio + guardaroba, soggiorno con cucina e sala da pranzo, camera da letto, bagno e terrazza coperta. Gli appartamenti saranno dotati di climatizzatori inverter, riscaldamento a pavimento nei bagni, ceramiche di alta qualità e pavimenti. All'appartamento è associato un posto auto. L'occupazione degli appartamenti è prevista per la fine del 2026. Per ulteriori informazioni, si prega di contattare: Info: +385 91 611 57 06 +385 98 420 885 azra@almadominvest.com
Agente responsabile di questa proprietà in PULA di 145.000 €
Jelena Maksimović
Telefono: +38552213332
Cellulare: +38598323264
Lingue straniere: Engleski Talijanski Ruski
Contatando l'inserzionista per favore citare il codice dell'immobile: REC-1245371
Alma Dom - Real Estate
Telefono: +385916115706
Cellulare: +385 91 6115706 +38598420885 +385991962863
Ultimi immobili del venditore
Immobili correlati