Top Banner
Ricerca alfabetica

171.000 € - PULA Appartamento REC-ID 1245804

Galleria
  • Città: PULA
  • Prezzo (€): 171.000 €
  • Superficie: 54 m2
  • Vani: 2
  • Bagni: 1
  • Trasporti: -
  • Vicinanza mare: -
  • Distanza dal centro: 0 m
  • Distanza dal mare: 0 m

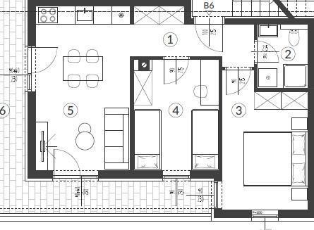
Vendita di appartamenti in un nuovo progetto, Pula! Progetto residenziale a Pula, edificio con tre piani e 12 unità abitative. L'appartamento B6, di superficie 54.84 m2, si trova al primo piano dell'edificio e si compone di: corridoio + guardaroba, soggiorno con cucina e sala da pranzo, 2 camere da letto, bagno e terrazza coperta. Gli appartamenti saranno dotati di climatizzatori inverter, riscaldamento a pavimento nei bagni, ceramiche e pavimenti di alta qualità. All'appartamento è assegnato un posto auto. Il trasferimento negli appartamenti è previsto per la fine del 2026. Per ulteriori informazioni, si prega di contattare: Info: +385 91 611 57 06 +385 98 420 885 azra@almadominvest.com

Contatta venditore

Contatto: Alma Dom - Real Estate
Immobile: Appartamento - Vendita - PULA
RECID: 1245804

Agent

Agente responsabile di questa proprietà in PULA di 171.000 €

Gojko Djurković

Telefono: +38552394310
Cellulare: +385954700000
Lingue straniere: Engleski

Fare una chiamata Contatta venditore

CONTATTO INSERZIONISTA

Contatando l'inserzionista per favore citare il codice dell'immobile: REC-1245804

Alma Dom - Real Estate

Alma Dom - Real Estate

Telefono: +385916115706
Cellulare: +385 91 6115706 +38598420885 +385991962863

Maggiori informazioni sull'agenzia
Aggiungi proprietà
Right Details Banners
Roto Details Banners