Top Banner
Ricerca alfabetica

93.000 € - SVETVINČENAT Casa REC-ID 1250951

Galleria
  • Città: SVETVINČENAT
  • Prezzo (€): 93.000 €
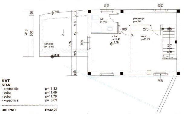
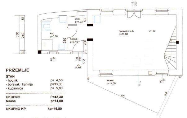
  • Superficie: 100 m2
  • Terra: 110 m2
  • Trasporti: -
  • Vicinanza mare: +
  • Distanza dal centro: 0 m
  • Distanza dal mare: 0 m

In vendita è un'attraente casa in pietra con un progetto di ristrutturazione e un permesso di costruzione nell'incantevole cittadina medievale di Svetvinčenat, nel centro dell'Istria. Svetvinčenat è uno dei gioielli dell'Istria con una ricca offerta turistica e numerosi eventi che si svolgono negli spazi storici straordinariamente attraenti della città. Oltre ai monumenti storici e culturali, Sanvincenti è una destinazione privilegiata per tutti gli amanti dei sentieri ciclistici ed escursionistici. L'offerta è una casa da ristrutturare con un progetto e un permesso di costruzione. Il progetto è misto in modo tale che ai 60 mq del piano terra si aggiunge un altro piano di 40 mq, e accanto alla casa c'è anche un orto di 110 mq con spazio per un parcheggio. Per domande e visite contattateci a: Azra Valjevac azra@almadominvest.com +385 91 611 5706 alma@alma-nekretnine.com +38598 420 885

Contatta venditore

Contatto: Alma Dom - Real Estate
Immobile: Casa - Vendita - SVETVINČENAT
RECID: 1250951

Agent

Agente responsabile di questa proprietà in SVETVINČENAT di 93.000 €

Alma Valjevac

Telefono: +38552213332
Cellulare: +38598420885

Fare una chiamata Contatta venditore

CONTATTO INSERZIONISTA

Contatando l'inserzionista per favore citare il codice dell'immobile: REC-1250951

Alma Dom - Real Estate

Alma Dom - Real Estate

Telefono: +385916115706
Cellulare: +385 91 6115706 +38598420885 +385991962863

Maggiori informazioni sull'agenzia
Aggiungi proprietà
Right Details Banners
Roto Details Banners