Top Banner
Ricerca alfabetica

189.900 € - LIŽNJAN Appartamento REC-ID 1254230

Galleria
  • Città: LIŽNJAN
  • Prezzo (€): 189.900 €
  • Superficie: 54 m2
  • Vani: 2
  • Bagni: 1
  • Trasporti: +
  • Vicinanza mare: -
  • Distanza dal centro: 0 m
  • Distanza dal mare: 0 m

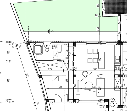
ISTRIA, LIŽNJAN - Appartamento con giardino vicino al mare! DUX nekretnine offre un appartamento con giardino vicino al mare! Offre una superficie totale di 54,23 m². L'appartamento ha una superficie di 43,33 m² + terrazza di 10,79 m². È composto da ingresso, soggiorno con cucina e accesso alla terrazza da un lato e al giardino dall'altro, camera da letto e bagno. Le camere da letto hanno accesso al giardino. L'appartamento dispone di un posto auto. Completamento dei lavori ottobre 2026! Sarà installato un condizionatore per il riscaldamento e il raffrescamento e l'appartamento sarà dotato di riscaldamento a pavimento in soggiorno e in bagno. Gentili clienti, la commissione di agenzia viene addebitata in conformità con i Termini e Condizioni Generali: www.dux-nekretnine.hr/opci-uvjeti-poslovanja

Contatta venditore

Contatto: DUX Nekretnine
Immobile: Appartamento - Vendita - LIŽNJAN
RECID: 1254230

Aggiungi proprietà
Right Details Banners
Roto Details Banners