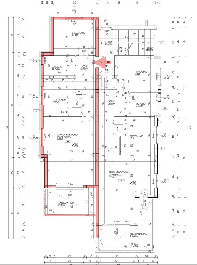
TRIBUNJ- SOVLJE, piccolo edificio in costruzione con 4 unità abitative, a soli 400 m dalla spiaggia e dal centro, in vendita appartamento su due livelli con terrazza sul tetto identificato come APPARTAMENTO S3 - appartamento su due livelli con superficie utile totale di 108,13 m2 composto da piano che include: ingresso, cucina con sala da pranzo e soggiorno, terrazza di 9,44 m2 con vista mare, due camere da letto, bagno, e terrazza sul tetto di 35,64 m2 composta da cucina estiva di 18,56 m2, terrazza coperta di 11,14 m2 e terrazza scoperta di 57,18 m2 con vista panoramica sul mare, oltre a pertinenza di 1 posto auto davanti all’edificio. L’edificio è in fase di costruzione con termine previsto per fine 2026, realizzato con materiali di qualità secondo gli ultimi standard edilizi e sarà dotato di facciata in polistirolo, porta blindata, infissi in PVC antracite con alzanti elettrici per tapparelle, zanzariere, porte interne bianche, climatizzatori nelle camere e nel soggiorno, ceramiche di alta qualità in tutti gli ambienti, riscaldamento elettrico a pavimento nel bagno e nel soggiorno. È possibile acquistare un posto auto aggiuntivo con supplemento. ALTRO DISPONIBILE: APPARTAMENTO S1 - venduto APPARTAMENTO S2 - S2 al piano terra, orientamento sud-est, superficie netta di 91,25 m2 composto da: ingresso, camera da letto 1, bagno, camera da letto 2, cucina con sala da pranzo e soggiorno, terrazza di 15,17 m2, giardino di 150 m2 e un posto auto davanti all’edificio di 12,5 m2. = 245.700 € APPARTAMENTO S4 - superficie utile totale di 109,71 m2 composto da piano che include: ingresso, cucina con sala da pranzo e soggiorno, terrazza di 13 m2 con vista mare, due camere da letto, bagno, e terrazza sul tetto di 33,84 m2 composta da cucina estiva di 14,58 m2, terrazza coperta di 12,2 m2 e terrazza scoperta di 52,63 m2 con vista panoramica sul mare, oltre a pertinenza di 1 posto auto davanti all’edificio = 332.430 € Tribunj è un tradizionale villaggio di pescatori situato sulla costa del Mare Adriatico, riconoscibile per la sua autentica atmosfera mediterranea e l’unicità del suo legame con la natura. Oltre ad essere vicino al mare, Tribunj è il luogo ideale per la vita familiare o per le vacanze, il tutto combinato con servizi moderni e infrastrutture che soddisfano le esigenze della vita contemporanea. Nel corso degli anni, Tribunj ha mantenuto il suo fascino, sviluppandosi al contempo in una destinazione popolare che offre una vita tranquilla con ottimi collegamenti a città più grandi come Šibenik, distante solo circa 10 chilometri. Questo appartamento rappresenta un’opportunità eccezionale per l’acquisto di un immobile che offre dotazioni moderne, spazi confortevoli e una posizione attraente in uno dei più desiderati insediamenti della Dalmazia.
Agente responsabile di questa proprietà in TRIBUNJ di 327.390 €
Hrvoje Zurak
Telefono:
+385917235581
Cellulare:
+385917235581
Lingue straniere:
Engleski jezik
Contatando l'inserzionista per favore citare il codice dell'immobile: REC-1257652
Naš Dom
Telefono: 00385917235581
Maggiori informazioni sull'agenziaUltimi immobili del venditore
Immobili correlati