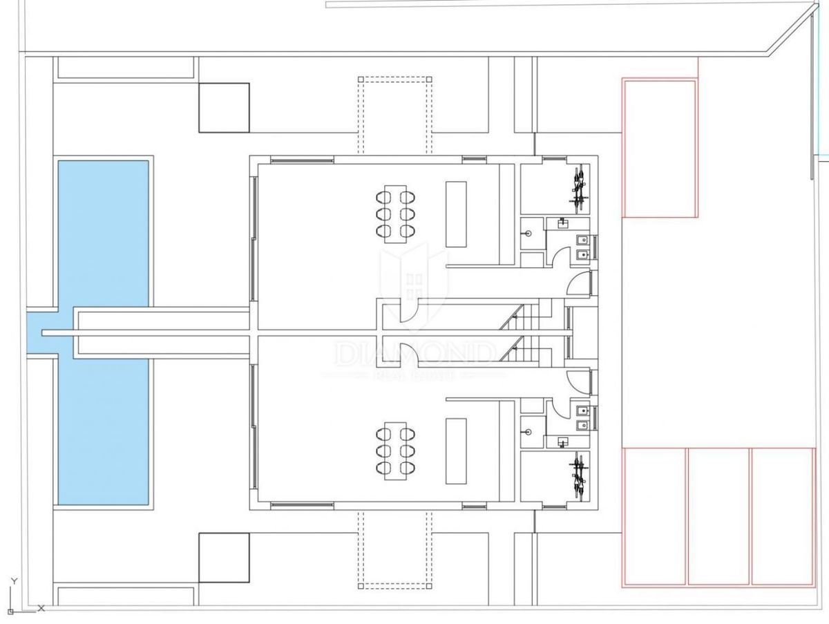
Umago, dintorni Una moderna casa bifamiliare di 100 m² con piscina, situata in una posizione tranquilla, ai margini del paese, a pochi chilometri da Umago. La proprietà è ideale per una tranquilla vita familiare, ma anche come investimento per l'affitto turistico grazie alla sua posizione attraente e alla disposizione funzionale. Il piano terra di 50 m² è progettato secondo un concetto open space che collega la cucina e il soggiorno in un'unità spaziosa e luminosa. Al piano terra si trovano anche un ripostiglio e un bagno per gli ospiti con doccia. Un'ampia parete vetrata lascia entrare molta luce naturale e conduce direttamente al cortile con piscina, creando una piacevole combinazione di spazio interno ed esterno, ideale per il relax e la socializzazione. Al primo piano si trovano tre camere da letto, ciascuna con il proprio bagno, che garantiscono il massimo comfort e privacy per i membri della famiglia o gli ospiti. La casa ha un design moderno, è dotata di aria condizionata e predisposizione per il riscaldamento elettrico a pavimento, che consente un soggiorno confortevole durante tutto l'anno. Questa proprietà rappresenta un'eccellente opportunità per acquistare una casa moderna vicino al mare, in una posizione tranquilla e tuttavia a breve distanza da tutti i servizi offerti da Umago e dai suoi dintorni.
Contatando l'inserzionista per favore citare il codice dell'immobile: REC-1261583
DIAMOND Real Estate
Telefono: +38552210824
Maggiori informazioni sull'agenziaUltimi immobili del venditore
Immobili correlati