Top Banner
Ricerca alfabetica

760.000 € - POREČ Casa REC-ID 1048367

Galleria
  • Città: POREČ
  • Prezzo (€): 760.000 €
  • €/m2: 3.306 €
  • Superficie: 229 m2
  • Vani: 4
  • Terra: 914 m2
  • Bagni: 4
  • Trasporti: -
  • Vicinanza mare: -
  • Distanza dal centro: 0 m
  • Distanza dal mare: 11000 m

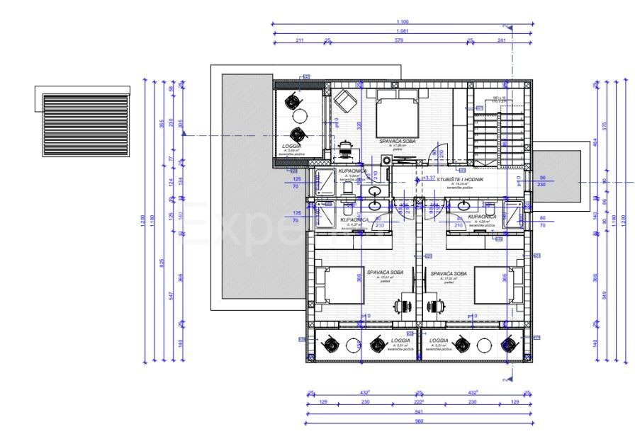
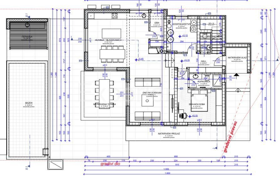
Nelle vicinanze di Parenzo, in una posizione idilliaca a ca. 11 km dalla costa e dal centro della città, è in vendita una villa con piscina che rappresenta un perfetto connubio tra design moderno e comfort. La superficie netta totale della villa è di 229,82 m², distribuita su due piani che offrono uno straordinario spazio per una vita confortevole. Al piano terra si trova il corridoio, cucina e sala da pranzo con accesso ad un spzioso terrazzo coperto, soggiorno, camera da letto con il proprio bagno, un locale tecnico e toilette. Mentre al primo piano sono situate tre camere da letto, ciascuna con il proprio bagno e balcone. Nel giardino sarà installata la piscina (30,84 m²) con zona prendisole. Descrizione tecnica:- struttura del tetto: soletta in cemento armato spessore 18 cm, isolamento termico e idrico,- le costruzioni del soppalco sono realizzate come una soletta in cemento armato con uno spessore di 18 cm,- la facciata viene eseguita come sistema di facciata ETICS costituito da isolamento termico con uno spessore di 8 cm e uno strato finale di facciata,- la carpenteria esterna è fornita da carpenteria in PVC, con alza tapparelle elettriche e zanzariere integrate,- porta interna: design in legno realizzato con impiallacciatura naturale trattata,- i pavimenti sono realizzati come "pavimenti galleggianti" con isolamento termico e acustico,- rivestimenti dei pavimenti: ceramica al piano terra, mentre nelle camere è previsto il parquet,- il riscaldamento è fornito tramite una pompa di calore che funge da fonte energetica per il riscaldamento dell'acqua calda sanitaria e del riscaldamento a pavimento. Per il riscaldamento degli ambienti nel periodo transitorio e per il raffrescamento sono previsti sistemi split (pompe di calore). Verrà installata anche una canna fumaria nel soggiorno,- cancelli d'ingresso ad apertura automatica,- il giardino sarà un prato con piante mediterranee piantate, irrigazione automatica,- illuminazione esterna, tre posti auto, impianto di allarme e impianto di videosorveglianza.

Contatta venditore

Contatto: EXPERIENCE Real Estate
Immobile: Casa - Vendita - POREČ
RECID: 1048367

Agent

Agente responsabile di questa proprietà in POREČ di 760.000 €

Patricija Simonetti

Telefono: +385 52 449 647
Cellulare: +385 91 300 4077

Fare una chiamata Contatta venditore

CONTATTO INSERZIONISTA

Contatando l'inserzionista per favore citare il codice dell'immobile: REC-1048367

EXPERIENCE Real Estate

EXPERIENCE Real Estate

Telefono: 00385/52449647
Cellulare: 00385989421532

Maggiori informazioni sull'agenzia
Aggiungi proprietà
Right Details Banners
Roto Details Banners