Top Banner
Ricerca alfabetica

69.000 € - VODNJAN Terreno REC-ID 1109048

Galleria
  • Città: VODNJAN
  • Prezzo (€): 69.000 €
  • Superficie: 353 m2
  • Trasporti: -
  • Vicinanza mare: -
  • Distanza dal centro: 0 m
  • Distanza dal mare: 0 m

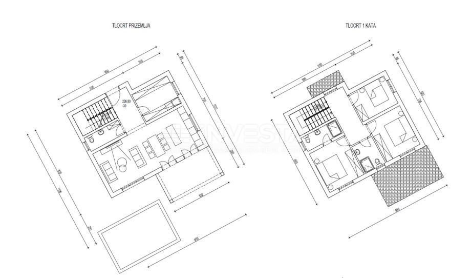
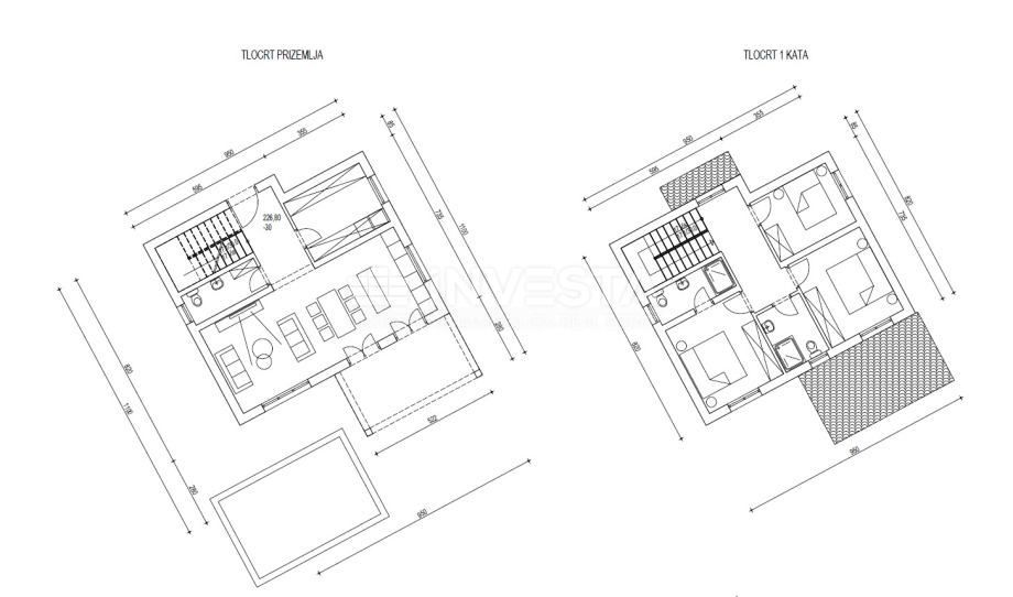
Zona di Dignano, terreno edificabile 353 m² con permesso di costruzione per una casa di 165 m² Vendiamo un terreno edificabile con permesso di costruzione per la costruzione di una casa con piscina nella zona di Orsera. La superficie totale del terreno è di 353 m² + quota della strada di accesso. Sul terreno è previsto un progetto di costruzione per una casa unifamiliare di superficie lorda di 165 m² con piscina. La casa è progettata su due livelli (piano terra + primo piano). Per la casa è stato realizzato il progetto architettonico principale, è stata svolta la procedura per la determinazione delle condizioni speciali e delle condizioni di allacciamento, ed è stato rilasciato il permesso di costruzione. Si segnala che il prezzo indicato include l’imposta sul valore aggiunto – IVA del 25% poiché il terreno è venduto da un soggetto giuridico. È possibile una successiva modifica del progetto e del permesso di costruzione, in accordo con le esigenze dei nuovi proprietari. La proprietà del terreno è in regola, senza gravami. È prevista l’opzione di accordo per l’esecuzione dei lavori di costruzione fino allo stato “grezzo” (roh‑bau) secondo un contratto preliminare, con dinamica di finanziamento adeguata. La strada di accesso è in ordine, e il terreno si trova in un villaggio nei dintorni di Orsera, verso l’interno dell’Istria, circondato da altre abitazioni. La posizione del terreno edificabile facilita l’allaccio ad energia elettrica e acqua. Per l’acquirente sono previsti costi per contributo comunale e idrico di circa €5.000, l’allaccio elettrico circa €2.000 e l’allaccio dell’acqua circa €1.000, ossia in totale circa €8.000. Il terreno edificabile indicato è uno dei cinque terreni edificabili sui quali verranno costruite le case, quindi è possibile acquistare uno o più lotti. I progetti principali realizzati, la procedura per determinare le condizioni speciali e i permessi di costruzione rilasciati accelerano notevolmente i tempi necessari per la costruzione. La vicinanza delle infrastrutture e le condizioni di allaccio approvate accelerano ulteriormente l’avvio della costruzione, rendendo questo progetto interessante per chi desidera costruire la propria nuova casa il prima possibile. Cogliete questa opportunità per costruire la vostra casa con piscina in Istria, alle condizioni di acquisto terreno molto convenienti, a 20 minuti d’auto dal mare e dalle splendide spiagge per cui l’Istria è famosa. La posizione del terreno è tale da trovarsi a 10 minuti dall’uscita dell’autostrada istriana, che vi collega a tutte le città dell’Istria in meno di un’ora. Va sicuramente sottolineata la presenza di numerose piste ciclabili, il miglior modo per esplorare l’Istria, una delle quali passa proprio accanto a questo terreno. Il clima mite mediterraneo, il mare e l’aria puliti e non inquinati, la sicurezza negli spostamenti, la natura intatta, gli ospiti accoglienti, l’alta qualità del cibo, gli oli d’oliva e i vini premiati e famosi nel mondo, gli asparagi selvatici e i funghi e molto altro sono certamente buoni argomenti per pensare a una casa propria in Istria. Per ogni ulteriore informazione o per un appuntamento per una visita, non esitate a contattarci con fiducia!

Contatta venditore

Contatto: INVESTA Real Estate
Immobile: Terreno - Vendita - VODNJAN
RECID: 1109048

Agent

Agente responsabile di questa proprietà in VODNJAN di 69.000 €

Đankarlo Čekić

Telefono: +385 52 33 00 33
Cellulare: +385 99 237 6130

Fare una chiamata Contatta venditore

CONTATTO INSERZIONISTA

Contatando l'inserzionista per favore citare il codice dell'immobile: REC-1109048

INVESTA Real Estate

INVESTA Real Estate

Telefono: +385915060500
Cellulare: +385915060511

Maggiori informazioni sull'agenzia
Aggiungi proprietà
Right Details Banners
Roto Details Banners