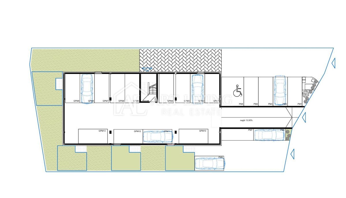
In un’ottima posizione, a soli circa 500 metri dal mare e 400 metri dai negozi e dal centro di Vodice, è iniziata la costruzione di un moderno edificio residenziale di alta qualità con 14 unità abitative distribuite su tre piani: piano terra, primo piano e secondo piano. I posti auto in garage si trovano nel seminterrato, mentre davanti all’edificio sono disponibili parcheggi esterni. L’appartamento SJ11, con una superficie abitabile netta totale di 104,20 m², si trova al secondo piano dell’edificio residenziale e commerciale. È composto da ingresso, soggiorno con cucina e zona pranzo, due camere da letto, un bagno, un WC, un ripostiglio e ben due ampie logge moderne di 18,10 m² e 11 m². Tutti gli appartamenti saranno costruiti in modo moderno e funzionale e dotati di sistemi di riscaldamento e raffrescamento di alta qualità. Il posto auto non è incluso nel prezzo. Su richiesta dell’acquirente è possibile acquistare uno o più posti auto esterni o in garage. L’immobile si trova in una zona tranquilla, vicino a tutti i principali servizi, ed è un’opportunità ideale per chi cerca una proprietà moderna adatta sia come abitazione e casa vacanze sia per affitti turistici. L’acquirente è esente dal pagamento dell’imposta sul trasferimento immobiliare. Il completamento dei lavori è previsto per giugno 2026. Gentili clienti, le visite all’immobile sono possibili esclusivamente previa sottoscrizione di un contratto di mediazione, che costituisce la base per ulteriori azioni relative alla compravendita e al pagamento della provvigione, in conformità alla Legge sulla mediazione immobiliare. L’agenzia “ART LIVING REAL ESTATE”, in qualità di mediatore immobiliare autorizzato, applica una commissione di intermediazione pari al 3% + IVA al momento della firma del preliminare o del contratto di compravendita. NOTA: Non siamo responsabili per eventuali errori nelle descrizioni degli immobili, ma ci impegniamo a essere il più precisi e accurati possibile. CODICE AGENZIA: 1487
Contatando l'inserzionista per favore citare il codice dell'immobile: REC-1235173
ART LIVING REAL ESTATE
Telefono: +385917848083
Cellulare:
+385917848083
Ultimi immobili del venditore
Immobili correlati