Top Banner
Ricerca alfabetica

199.000 € - MARČELJI Appartamento REC-ID 1248121

Galleria
  • Città: MARČELJI
  • Prezzo (€): 199.000 €
  • Superficie: 67 m2
  • Vani: 3
  • Bagni: 2
  • Trasporti: +
  • Vicinanza mare: -
  • Distanza dal centro: 0 m
  • Distanza dal mare: 0 m

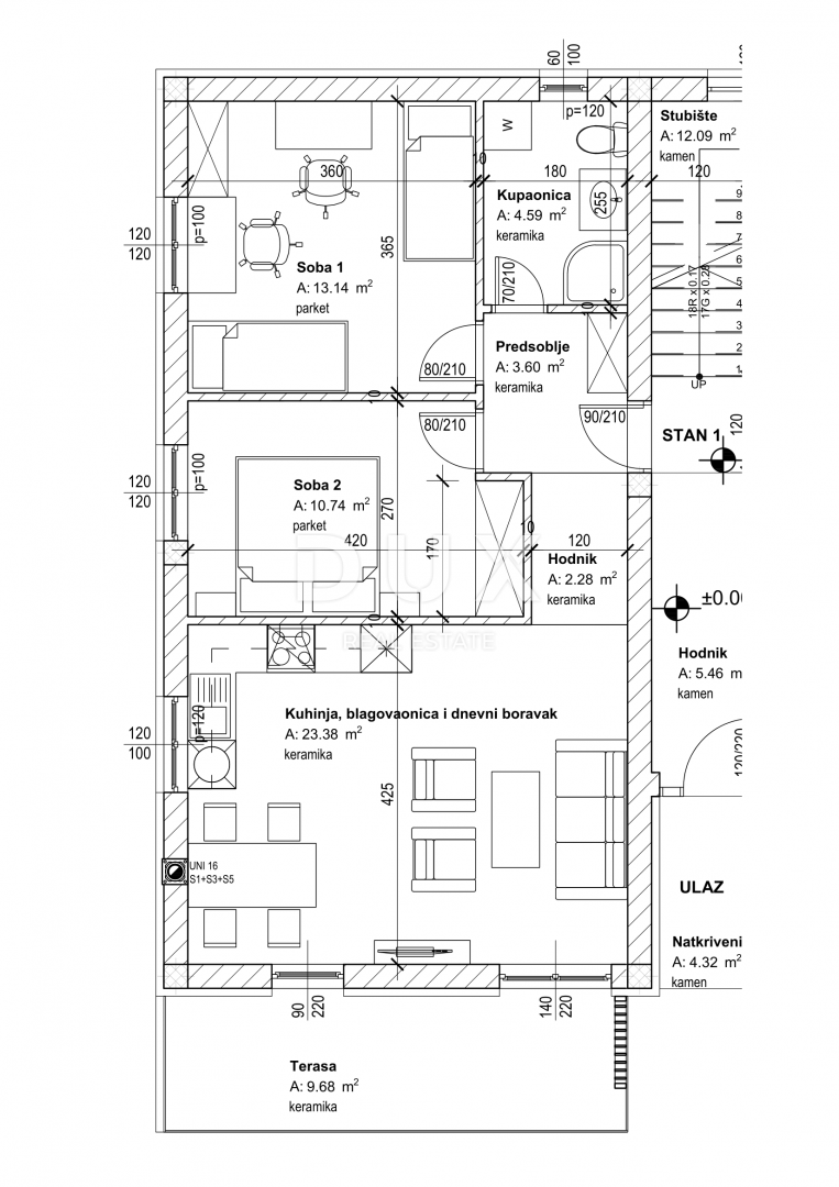
RIJEKA, VIŠKOVO - appartamento 1. (67 m2) IN UN NUOVO EDIFICIO 2 CAMERE DA LETTO + SOGGIORNO, EDIFICIO URBANO VIŠKOVO! OCCASIONE! PRE-VENDITA DI APPARTAMENTI FINO AL 15.07.2025! SCONTO DEL 15%!!! Appartamento 1 - piano terra Ingresso: 3,60 m2 Corridoio: 2,28 m2 Cucina, sala da pranzo e soggiorno: 23,38 m2 Terrazza: 9,68 m2 · Camera_1: 13,14 m2 · Camera_2: 10,74 m2 Bagno: 4,59 m2 Superficie netta totale dell'appartamento 1: 67,41 m2 L'edificio è esclusivamente a scopo residenziale. Conterrà 6 appartamenti con relativi ripostigli nel seminterrato e posti auto esterni. Ci sono 6 ripostigli per 6 appartamenti nel seminterrato. Ci sono 2 appartamenti al piano terra. Ci sono 2 appartamenti al 1° piano. Ci sono 2 appartamenti al 2° piano. VISTA ESTERNA E SVILUPPO AMBIENTALE: L'edificio ha volumi semplici e funzionali. Le facciate sono moderatamente frastagliate orizzontalmente e verticalmente. La facciata sarà rifinita con materiali moderni, in alcune tonalità di bianco e grigio. Gli infissi esterni saranno in PVC, di colore nero. Le ringhiere dei balconi saranno in vetro. Il tetto è piano. La parte non edificata del lotto edificabile sarà organizzata come area veicolare e pedonale, area di accesso all'edificio, area pedonale e area verde. L'area veicolare e pedonale e l'area di accesso all'edificio saranno asfaltate. L'area pedonale sarà pavimentata con elementi in calcestruzzo e le aree verdi saranno erbose e sistemate a giardino con vegetazione autoctona bassa e alta. COSTRUZIONE: La struttura dell'edificio è costruita in mattoni a blocchi, ad eccezione dei muri del seminterrato, che sono in cemento armato. I muri in mattoni a blocchi sono incorniciati da anelli verticali e orizzontali in cemento armato. Le strutture interpiano sono realizzate in solette di cemento armato. Le ali e i pianerottoli delle scale sono realizzati in solette di cemento armato. I pilastri, le travi e gli architravi sono in cemento armato. Le fondazioni e i muri di fondazione sono in cemento armato. La struttura del tetto è realizzata in solette di cemento armato. IMPIANTI: L'edificio ospiterà impianti di adduzione e scarico idrico sanitario, impianti di scarico delle acque piovane, impianti di scarico della condensa dell'impianto termotecnico, impianti elettrici a corrente alternata (telefonia e citofono) e impianti meccanici per il riscaldamento, il raffrescamento e la ventilazione. MICROLOCALIZZAZIONE: Il comune di Viškovo si trova a nord-ovest di Fiume e rappresenta una delle aree più dinamiche, non solo all'interno della Contea Litoraneo-Montana, ma anche a livello nazionale. Il comune di Viškovo è collegato alle strade statali tramite lo svincolo principale di Škurinje e il nuovo svincolo di Rujevica (tangenziale di Fiume), che facilita il transito e l'accesso al comune stesso. Il comune è attraversato da 5 strade provinciali e 4 strade locali. Il Comune di Viškovo si trova nelle immediate vicinanze del confine con la Slovenia (valico di frontiera di Rupa) ed è quindi facilmente e rapidamente accessibile a sloveni e italiani, e fa affidamento in parte su Abbazia come importante centro turistico. L'abitato di Viškovo è il centro amministrativo del comune. Tutte le istituzioni importanti si trovano lungo la strada principale: il Comune, l'ufficio postale, la scuola elementare, gli asili, la biblioteca, gli istituti di assistenza sanitaria di base, le farmacie, le banche, la chiesa, l'ufficio turistico, i distributori di benzina e diversi negozi di alimentari, oltre a diverse attività di servizio. IMMOBILI IN UNA POSIZIONE ECCELLENTE E UNICA CON UN GRANDE POTENZIALE! Certamente un immobile per la vita familiare, ma adatto anche come investimento turistico. Siate un passo avanti e approfittate di questa rara opportunità! Gentili clienti, la commissione di agenzia viene addebitata in conformità con le Condizioni Generali di Contratto: www.dux-nekretnine.hr/opci-uvjeti-poslovanja

Contatta venditore

Contatto: DUX Nekretnine
Immobile: Appartamento - Vendita - MARČELJI
RECID: 1248121

Aggiungi proprietà
Right Details Banners
Roto Details Banners