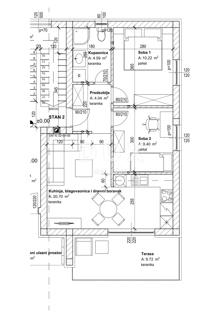
RIJEKA, VIŠKOVO - appartamento 2. (57 m2) IN UN NUOVO EDIFICIO 2 CAMERE DA LETTO + SOGGIORNO, EDIFICIO URBANO VIŠKOVO! OCCASIONE! PRE-VENDITA DI APPARTAMENTI FINO AL 15.07.2025! SCONTO DEL 15%!!! Appartamento 2 - piano terra Ingresso: 4,04 m2 Cucina, sala da pranzo e soggiorno: 20,70 m2 Terrazza: 9,72 m2 · Camera_1: 10,22 m2 Camera_2: 8,40 m2 Bagno: 4,59 m2 Superficie netta totale dell'appartamento 2: 57,67 m2 L'edificio è esclusivamente a scopo residenziale. Conterrà 6 appartamenti con relativi ripostigli nel seminterrato e posti auto esterni. Ci sono 6 ripostigli per 6 appartamenti nel seminterrato. Ci sono 2 appartamenti al piano terra. Ci sono 2 appartamenti al 1° piano. Ci sono 2 appartamenti al secondo piano. ASPETTO ESTERNO E SVILUPPO AMBIENTALE: L'edificio ha volumi semplici e funzionali. Le facciate sono moderatamente frastagliate orizzontalmente e verticalmente. La facciata sarà rifinita con materiali moderni, in alcune tonalità di bianco e grigio. Gli infissi esterni saranno in PVC, di colore nero. Le ringhiere dei balconi saranno in vetro. Il tetto è piano. La parte non edificata del lotto edificabile sarà adibita a zona veicolare e pedonale, area di accesso all'edificio, area pedonale e area verde. L'area veicolare e pedonale e l'area di accesso all'edificio saranno asfaltate. L'area pedonale sarà pavimentata con elementi in calcestruzzo e le aree verdi saranno erbose e sistemate a giardino con vegetazione autoctona bassa e alta. COSTRUZIONE: La struttura dell'edificio è realizzata in blocchi di mattoni, ad eccezione dei muri del seminterrato, che sono in cemento armato. I muri in blocchi di mattoni sono incorniciati da anelli verticali e orizzontali in cemento armato. Le strutture interpiano sono in solette di cemento armato. Le ali delle scale e i pianerottoli sono realizzati in solette di cemento armato. I pilastri, le travi e gli architravi sono in cemento armato. Le fondazioni e i muri di fondazione sono in cemento armato. La struttura del tetto è realizzata in solette di cemento armato. IMPIANTI: L'edificio ospiterà impianti di adduzione e scarico dell'acqua sanitaria, impianti di scarico delle acque piovane, impianti di scarico della condensa dell'impianto termotecnico, impianti elettrici a corrente alternata (telefonia e citofono) e impianti meccanici per il riscaldamento, il raffreddamento e la ventilazione. MICRO-LOCALIZZAZIONE: Il Comune di Viškovo si trova a nord-ovest di Fiume e rappresenta una delle aree più dinamiche, non solo all'interno della Contea Litoraneo-Montana, ma anche a livello nazionale. Il Comune di Viškovo è collegato alle strade statali tramite lo svincolo principale di Škurinje e tramite lo svincolo di Rujevica (tangenziale di Fiume) di recente apertura, che facilita il transito e l'accesso al Comune stesso. Il Comune è attraversato da 5 strade provinciali e 4 strade locali. Il comune di Viškovo si trova nelle immediate vicinanze del confine con la Slovenia (valico di frontiera di Rupa) ed è quindi facilmente e rapidamente accessibile a sloveni e italiani, e fa affidamento in parte su Abbazia come importante centro turistico. L'abitato di Viškovo è il centro amministrativo del comune. Lungo la strada principale si trovano tutte le istituzioni importanti: il comune, l'ufficio postale, la scuola elementare, gli asili, la biblioteca, gli istituti di assistenza sanitaria di base, le farmacie, le banche, la chiesa, l'ufficio turistico, i distributori di benzina e diversi negozi di alimentari, oltre a diverse attività di servizio. IMMOBILE IN UNA POSIZIONE ECCELLENTE E UNICA CON UN GRANDE POTENZIALE! Sicuramente un immobile per la vita familiare, ma adatto anche come investimento turistico. Siate un passo avanti e approfittate di questa rara opportunità! Gentili clienti, la commissione di agenzia viene addebitata in conformità con i Termini e Condizioni Generali: www.dux-nekretnine.hr/opci-uvjeti-poslovanja
Contatando l'inserzionista per favore citare il codice dell'immobile: REC-1248122
DUX Nekretnine
Telefono: 051518174
Maggiori informazioni sull'agenziaUltimi immobili del venditore
Immobili correlati