Top Banner
Поиск по алфавиту

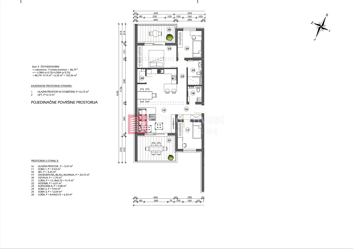
255.650 € - SLAVONSKI BROD Квартира REC-ID 1218958

Галерея
  • Город: SLAVONSKI BROD
  • Цена (€): 255.650 €
  • Район: 102 m2
  • Комнат: 4
  • Ванных комнат: 2
  • Транспорт: +
  • Близость моря: -
  • Расстояние до центра: 0 m
  • Расстояние до моря: 0 m

Связаться с продавцом

Kонтакт: TRGO-INVEST
Запрос на недвижимость: Квартира - Продается - SLAVONSKI BROD
RECID: 1218958

КОНТАКТ РЕКЛАМОДАТЕЛЯ

При ответе на объявление обязательно укажите шифр объекта недвижимости: REC-1218958

TRGO-INVEST

TRGO-INVEST

Телефон: 035448862
Мобильный телефон: 098340484

Подробнее об агентстве
Добавить недвижимость
Right Details Banners
Roto Details Banners