
Истра, Медулин, Квартира с садом
Водице - ЭКСКЛЮЗИВНОЕ РАСПОЛОЖЕНИЕ *ВИД НА МОРЕ* Квартиры в новостройке
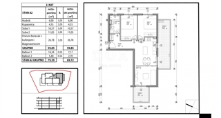
Квартира Opatija - Centar, Opatija, 69m2
Роскошные апартаменты на продажу в эксклюзивном месте, Песчана Увала, Пула!
Квартира Martinovka, Trnje, 32m2
Квартира Tar, Tar-Vabriga, 50,31m2
Квартира Malinska, Malinska-Dubašnica, 62m2
ИЧИЧИ, дом в отличном месте, ЭКСКЛЮЗИВНО В НАШЕМ АГЕНТСТВЕ!
Дом Draž, 120m2
Квартира/Апартамент Trešnjevka, Trešnjevka - Sjever, 59,34m2
Брдовец - Запрежич - дом особой архитектуры - новостройка
Квартира, Продажа, Трешневка - Юг, Средняци, 65,22 м2, 2,5-комнатная (2К+ДБ)
Водице, современная двухкомнатная квартира в тихом районе
Повляна - сельскохозяйственный участок - ВТОРАЯ ЛИНИЯ
Дом Šišan, Ližnjan, 75m2
Коммерческое помещение, Пула, Истра
Квартира Poreč, 60m2
Остров Крк, город Крк, ближайшие окрестности, современная вилла с бассейном, продажа
Участок под застройку в глубинке Далмации
Пула, роскошная квартира с бассейном в 2 км от пляжа
ИСТРА, Умаг - Отдельно стоящий дом в окрестностях Ловречицы!
Эксклюзивная вилла с видом на море – Умаг, Истра
Роскошный пентхаус в Округе Горнем/Чиово с крытой террасой
СЕЛЦЕ - новостроящаяся двухэтажная квартира
Земельный участок строительного назначения Labin, 912m2
квартира Martinkovac, Rijeka, 100m2
Продается квартира – Врбик, 46,57 м² – функциональная, светлая, отличное местоположение!
APARTAMENT MAGIC CU 5 CAMERE, GRĂDINĂ ȘI GARAJ ÎN PANTOVČAK
Дом Hreljin, Bakar, 153m2
KARLOVAC - Однособан стан, ул. Андрије Хебранга