Top Banner
Поиск по алфавиту

402.000 € - SRIMA Квартира REC-ID 1247376

Галерея
  • Город: SRIMA
  • Цена (€): 402.000 €
  • Район: 127 m2
  • Комнат: 4
  • Парковка: 24 m2
  • Вид: море
  • Ванных комнат: 2
  • Транспорт: -
  • Близость моря: +
  • Расстояние до центра: 0 m
  • Расстояние до моря: 0 m

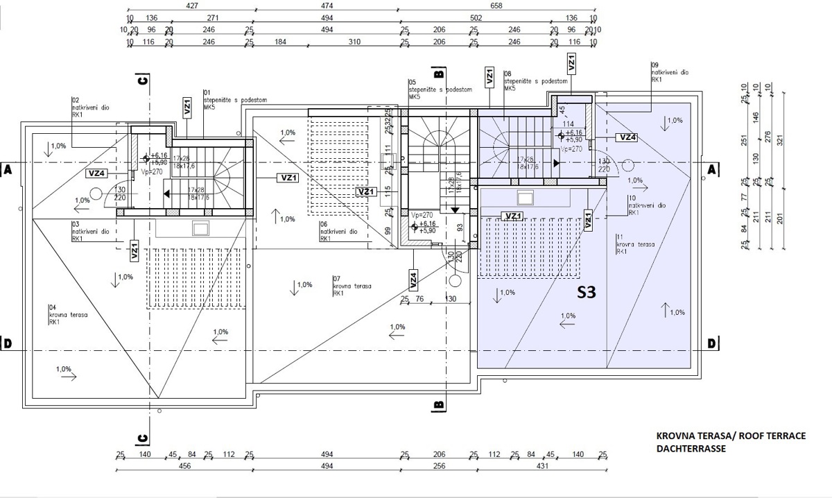
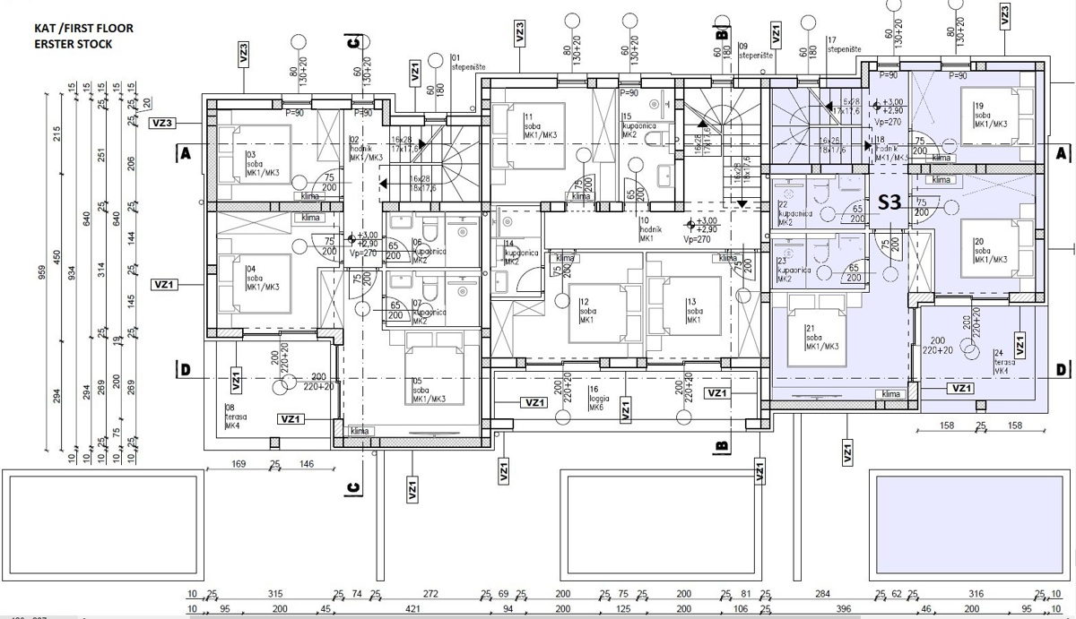
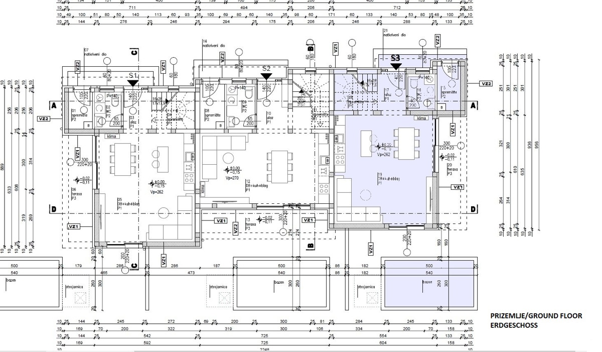
Водице, СРИМА - продаются квартиры с бассейном в новостройке рядом с пляжем. Проект современного дизайна имеет три этажа: цокольный этаж + этаж + крыша с террасой и состоит из трёх жилых единиц. Каждая единица имеет собственный бассейн, небольшой участок сада и два парковочных места. Проект в настоящее время строится с использованием качественных материалов и будет оснащён в соответствии с последними строительными стандартами. Планируемый срок завершения строительства — лето 2026 года. =S3 КВАРТИРА имеет общую чистую полезную жилую площадь 127,43 м2 и состоит из трёх этажей: цокольный этаж + этаж + второй этаж. Цокольный этаж с чистой полезной площадью 53,13 м2 включает вход, кладовую, туалет, кладовую под лестницей, кухню с обеденной зоной и гостиную с выходом на крытую террасу. Внутренняя лестница ведёт на этаж дома с чистой полезной жилой площадью 52,36 м2, который состоит из лестницы, коридора, двух спален, ванной комнаты и главной спальни с собственной ванной комнатой, а также открытой террасы. Второй этаж с общей чистой полезной жилой площадью 21,94 м2 состоит из лестницы с площадкой, крытой части крыши с террасой и открытой части крыши с террасой площадью 46,26 м2. Объект расположен в тихом районе в окружении новых семейных вилл, примерно в 300 м от пляжа и в 800 м от центра. Доступно также: =S1 КВАРТИРА имеет общую чистую полезную жилую площадь 126,53 м2 и состоит из трёх этажей: цокольный этаж + этаж + второй этаж. Цокольный этаж с чистой полезной площадью 52,50 м2 включает вход, кладовую, туалет, кладовую под лестницей, кухню с обеденной зоной и гостиную с выходом на крытую террасу площадью 13,28 м2. Внутренняя лестница ведёт на этаж дома с чистой полезной жилой площадью 52,06 м2, который состоит из лестницы, коридора, двух спален, ванной комнаты и главной спальни с собственной ванной комнатой, а также открытой террасы площадью 7,90 м2. Второй этаж с общей чистой полезной жилой площадью 21,97 м2 состоит из лестницы с площадкой, крытой части крыши с террасой площадью 5,29 м2 и открытой части крыши с террасой площадью 46,21 м2. =S2 КВАРТИРАимеет общую чистую полезную жилую площадь 139,02 м2 и состоит из трёх этажей: цокольный этаж + этаж + второй этаж. Цокольный этаж с чистой полезной площадью 53,44 м2 включает вход, кладовую, туалет, кладовую под лестницей, кухню с обеденной зоной и гостиную с выходом на крытую террасу. Внутренняя лестница ведёт на этаж дома с чистой полезной жилой площадью 56,12 м2, который состоит из лестницы, коридора, двух спален, ванной комнаты и главной спальни с собственной ванной комнатой, а также открытой террасы. Второй этаж с общей чистой полезной жилой площадью 29,46 м2 состоит из лестницы с площадкой, крытой части крыши с террасой и открытой части крыши с террасой площадью 49,25 м2.

Связаться с продавцом

Kонтакт: Naš Dom
Запрос на недвижимость: Квартира - Продается - SRIMA
RECID: 1247376

Agent

Агент, отвечающий за эту недвижимость в SRIMA с ценой 402.000 €

Hrvoje Zurak

Телефон: +385917235581
Мобильный телефон: +385917235581
Иностранные языки: Engleski jezik

Сделать звонок Связаться с продавцом

КОНТАКТ РЕКЛАМОДАТЕЛЯ

При ответе на объявление обязательно укажите шифр объекта недвижимости: REC-1247376

Naš Dom

Naš Dom

Телефон: 00385917235581

Подробнее об агентстве
Добавить недвижимость
Right Details Banners
Roto Details Banners