
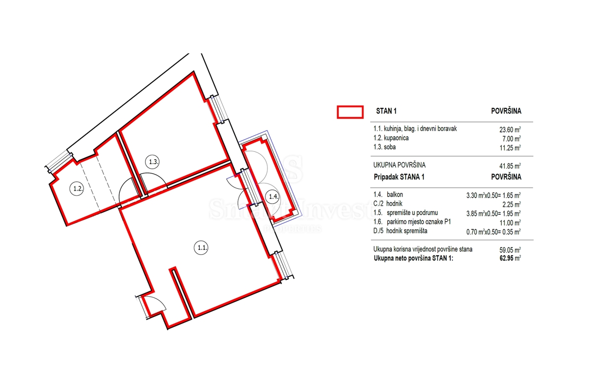
ОПАТИЯ - ЦЕНТР Полностью меблированная квартира в прекрасной австро-венгерской вилле, расположенной в исключительном месте в самом центре Опатии! ВИЛЛА Вилла «Артемис» расположена в престижном месте в самом центре прекрасной Опатии и является редкостью на рынке. В 2016 году она была полностью отремонтирована и декорирована с сохранением исторических деталей, что подтверждается тем фактом, что полная реставрация проводилась совместно с Департаментом охраны памятников архитектуры Риеки. Вилла состоит из подвала, первого этажа, второго и третьего этажей, а также прекрасно оформленной мансарды. Все этажи соединены лифтом и имеют отдельную систему отопления с тепловыми насосами – фанкойлами. Вся вилла оборудована сигнализацией и видеонаблюдением. Коридор с лестницей, облицованной старинным камнем, и красивым кованым ограждением пропитан историей. Внешний вид виллы также был полностью отреставрирован, включая фасад и внешние деревянные столярные изделия из лиственницы со ставнями. Фасад имеет непрямое освещение, что делает виллу по-настоящему особенной в ночное время. Важно подчеркнуть, что у виллы есть собственная парковка. ИСТОРИЯ Вилла «Артемис» на её нынешнем месте, рядом с городским рынком, была построена около 1908 года. До этого была снесена вилла «Леда», спроектированная для владельца Йосипа Дуймича известным архитектором Эмилио Амброзини. На её месте братья Милан и Владимир Кундич, известные в то время мясники, построили новое городское здание, которое, по словам знакомых с ситуацией людей, скорее всего, изначально имело жилое и коммерческое назначение. Вилла «Артемис» – типичная вилла в стиле историзма с единым объёмом и богатым декором (женская фигура в полный рост, различные маскарады, розетки, балконные консоли с растительными мотивами, аттический фигурный фриз и т. д.), расположенным на уровне первого и второго этажей, окнами и балконами с воздушным декоративным металлическим ограждением между каменными колоннами. Угловой балкон первого этажа, соединённый тремя колоннами с балконом верхнего этажа, напоминает эркер, а мансардная зона, отделанная высокой вертикальной медной крышей с тёмно-зелёной патиной, очень напоминает узнаваемую австро-венгерскую континентальную архитектуру. Владельцы, вероятно, во многом предопределили облик виллы, придав ей черты неостиля, учитывая, что она была построена в конце первого десятилетия XX века, когда Амброзини был преимущественно подвержен влиянию венского модерна. КВАРТИРА 1 Квартира 1 площадью 62,95 м² полностью меблирована дизайнерской мебелью и расположена на 2-м этаже виллы с лифтом. В вашем распоряжении: гостиная с кухней и столовой (общая площадь 41,85 м²), балкон площадью 3,30 м², а также кладовая и коридор в подвале и коридор на 2-м этаже общей площадью 17,80 м². Квартира также располагает парковочным местом P1 площадью 11,00 м² — еще одно ценное преимущество этой эксклюзивной недвижимости. • дизайнерская мебель и освещение • высококачественная техника • отопление и кондиционирование воздуха с помощью фанкойлов Airmec • теплый пол в ванных комнатах • ванные комнаты оборудованы высококачественной сантехникой • высококачественные стеклопакеты изделия из лиственницы • противовзломная входная дверь • лифт • 1 парковочное место • кладовая Прекрасная недвижимость в уникальном и очень редком месте — в самом центре Опатии, в непосредственной близости от пляжа и всей инфраструктуры! Для получения дополнительной информации и записи на просмотр звоните по телефону: +385/99/320-0008
Агент, отвечающий за эту недвижимость в OPATIJA с ценой 600.000 €
Agencija Opatija
Мобильный телефон: +385/99/320-0008
При ответе на объявление обязательно укажите шифр объекта недвижимости: REC-1221400
Smart Invest Properties
Телефон: +385/99/320-0008
Мобильный телефон: +385/99/320-0008
Последние объекты
Связанные объекты недвижимости